
묵동 다가구주택 '스키니'
서울 중랑구 묵동의 대지에는 담장으로 둘러싸인 마당과 반지하, 2층 규모의 오래된 주택, 이 집의 수명만큼 같이 한 나무 한 그루가 심겨 있다. 요즘의 다가구주택이나 다세대주택이란 개념이 없던 시절 집주인이 남는 방에 세입자를 들이면서 서서히 다가구주택으로 변모하였는데 셋방살이에서 진화하여 출입구가 따로 나고 화장실이나 부엌이 딸린 형태의 초기 다가구주택 모습이 옆집, 근처의 다른 집들에서도 볼 수 있다.
주차장법이 정비되고 용적률이 늘어나면서 마당은 없어지고 집은 수직의 모습으로 동네에 들어선다. 이제 대문을 들어서 마당으로 이어지던 집들의 풍경은 찾기 어렵게 된 것이다. 더 많은 가구 수와 필로티 구조의 주차장으로 채워지는 동네의 모습이 비슷비슷해 보이는 이유이기도 하다.
우리는 기존에 있던 주택을 철거하고 비워진 대지 위로, 거주자에게 딱 맞는 주거환경을 가진 다가구주택을 지어 이러한 동네에 차별화를 주고자 했다.


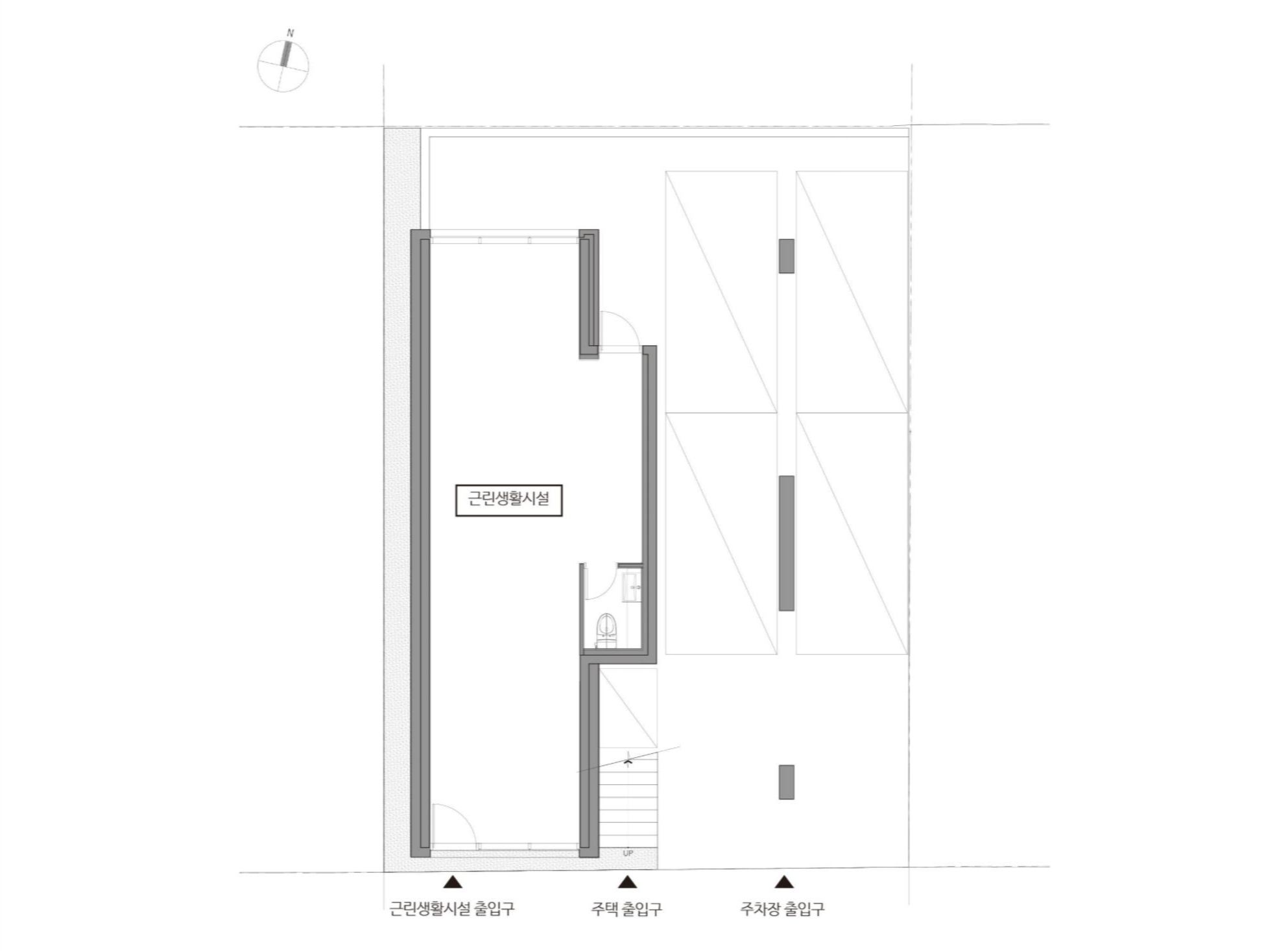
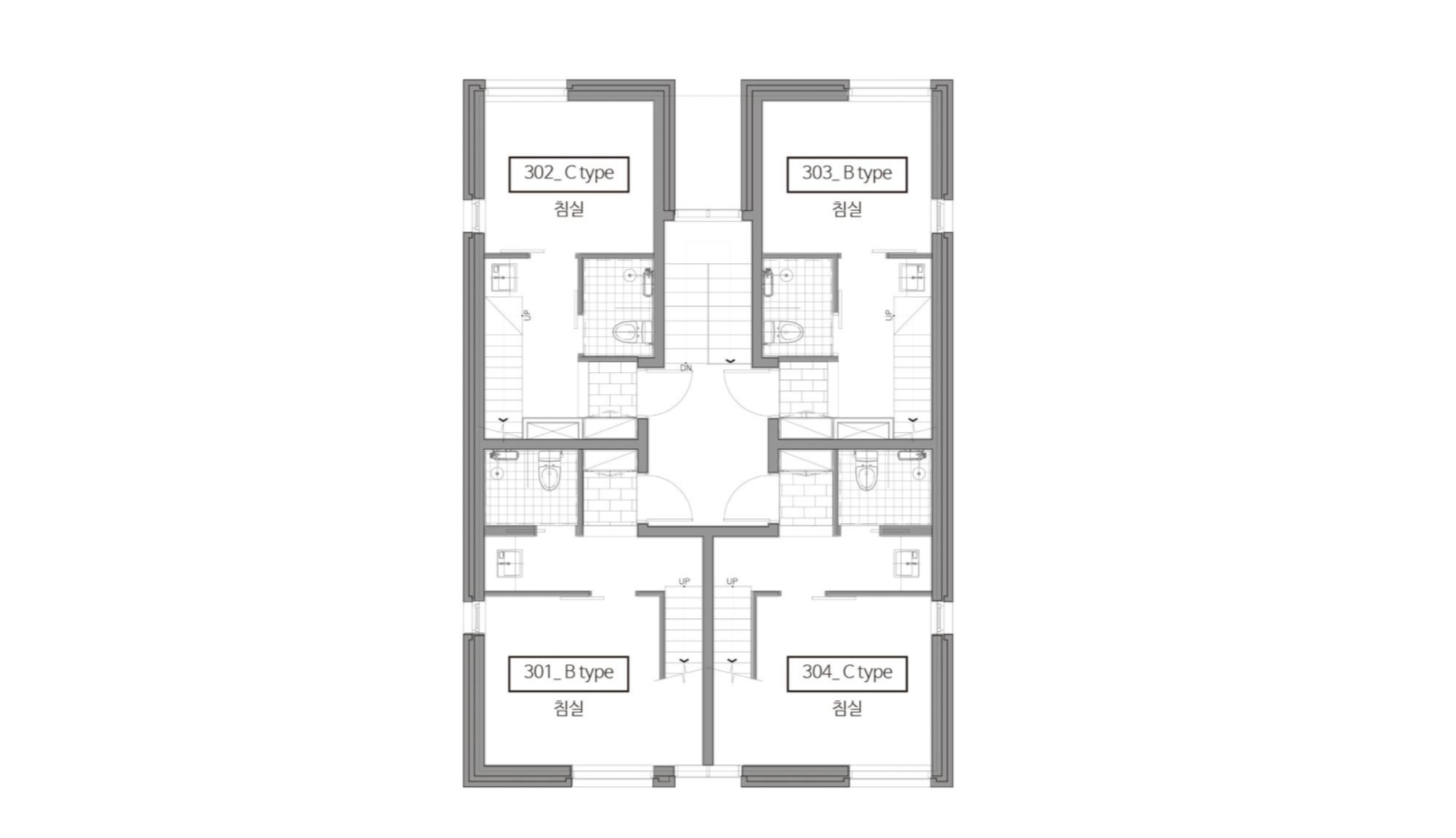
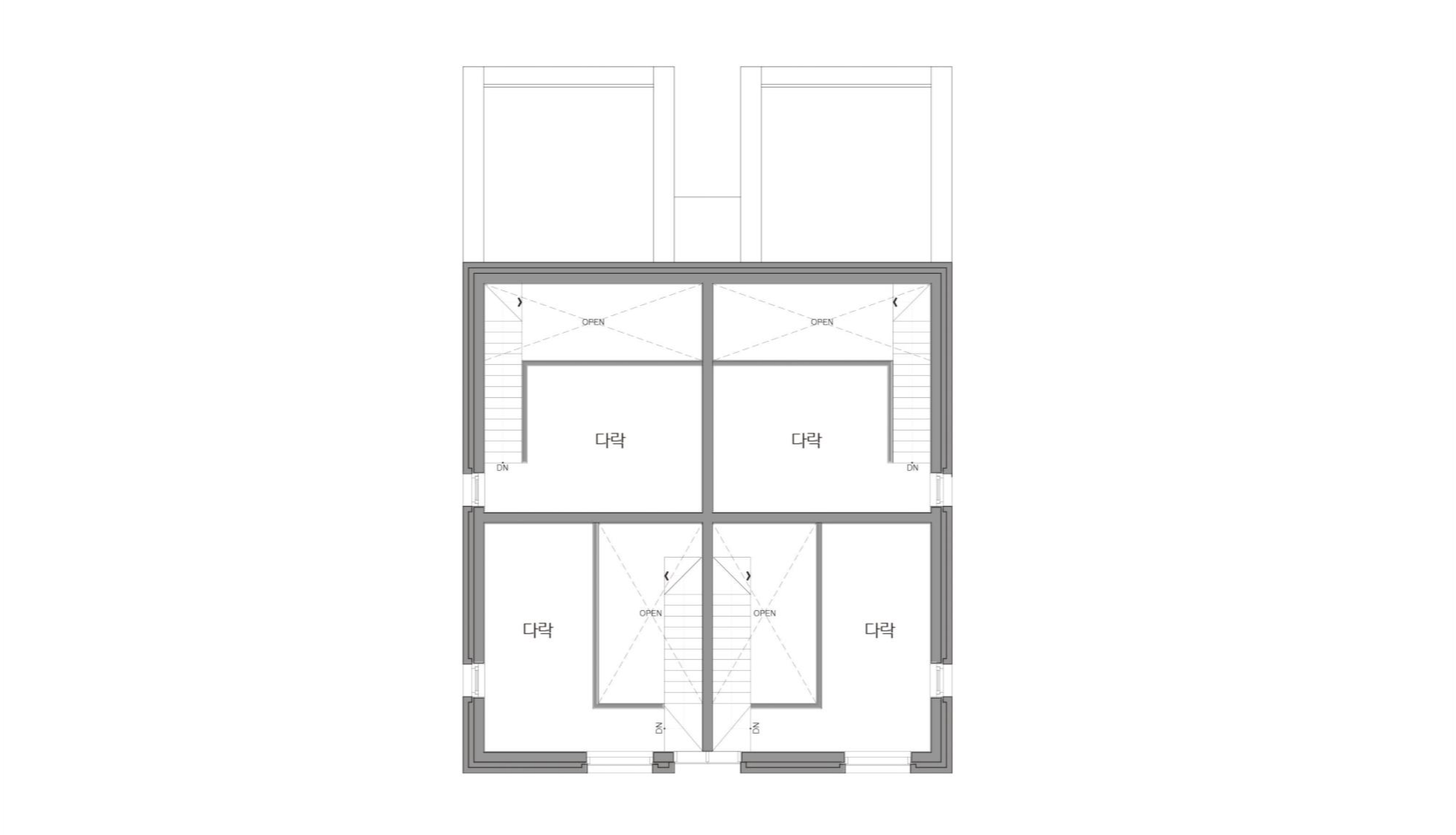
이웃한 집들 사이에 낀 대지 상황은 집을 깊숙이 자리하게 했다. 1층 근린생활시설과 주차장 사이, 이 집의 주된 접근 통로인 계단을 오르면 전면으로 나온 집과 깊숙하게 자리한 집이 병렬로 연속되어, 2층 원룸 형태의 집들과 3층 복층의 집들로 구성된다.

거주자의 환경을 고려한 단위주택
8가구가 독립으로 구성된 묵동 다가구주택은 20~30대의 독립한 1인 내지 2~3인이 거주할 수 있는 스튜디오형과 침실이 구분된 주거 형태를 갖는다.

이곳에 거주할 자의적인 독립 가구들을 특정하기는 어렵다. 소득 수준이나 직업, 라이프스타일은 더욱 알 수 없다. 대부분의 1인 가구들이 다가구주택, 다세대주택, 오피스텔 등의 주거 형태를 갖고 임대료와 교통을 이유로 입주를 결정하지만, 근처에 새집이 들어서거나, 직장을 옮기거나, 결혼하거나 임대 조건의 변화로 세입자들은 들어오고 나간다.
원룸 형태의 집들이 머물다 가는 집의 개념으로 자리하다가는 동네의 모습도 삭막해지지 않을까! 이에, 가구 수를 늘리기보다는 거주자의 환경을 고려하여 적정한 단위주택의 크기를 가늠하여 집을 구성했다.




도로에 면한 대지의 폭이 협소하고 양옆으로 이웃한 집들의 관계는 채광이나 환기를 위한 창에 영향을 주었다. 따라서 남북으로 열린 방향으로는 채광을 위한 창을 내고 측면으로는 환기를 위한 창을 분리하여 설치했다.










건축개요
위치: 서울 중랑구 묵동 156-8
용도: 다가구택(8세대), 근린생활시설
규모: 지상4층
대지면적: 167.30㎡ (50.61py)
건축면적: 100.20㎡ (30.31py)
연면적: 282.24㎡ (85.38py)
건폐율: 59.89%
용적률: 168.70%
구조: 철근콘크리트 구조
주차대수: 4대
사진: 박건주
시공: ㈜마루디자인건설
설계: 투닷건축사사무소