
방이동 다세대주택 '라운딩'
올림픽 공원에서 한 켜 물러난 주택가. 건축주는 본인이 거주하지 않는 투자와 수익 목적의 임대주택을 짓고자 하였다. 이른바 수익형 부동산의 실현이 목적으로, 우리는 그 속에서 임대사업의 상품인 주거의 거주환경과 임대 가치를 높이는 것이 건축 설계자의 역할이라고 생각했다.
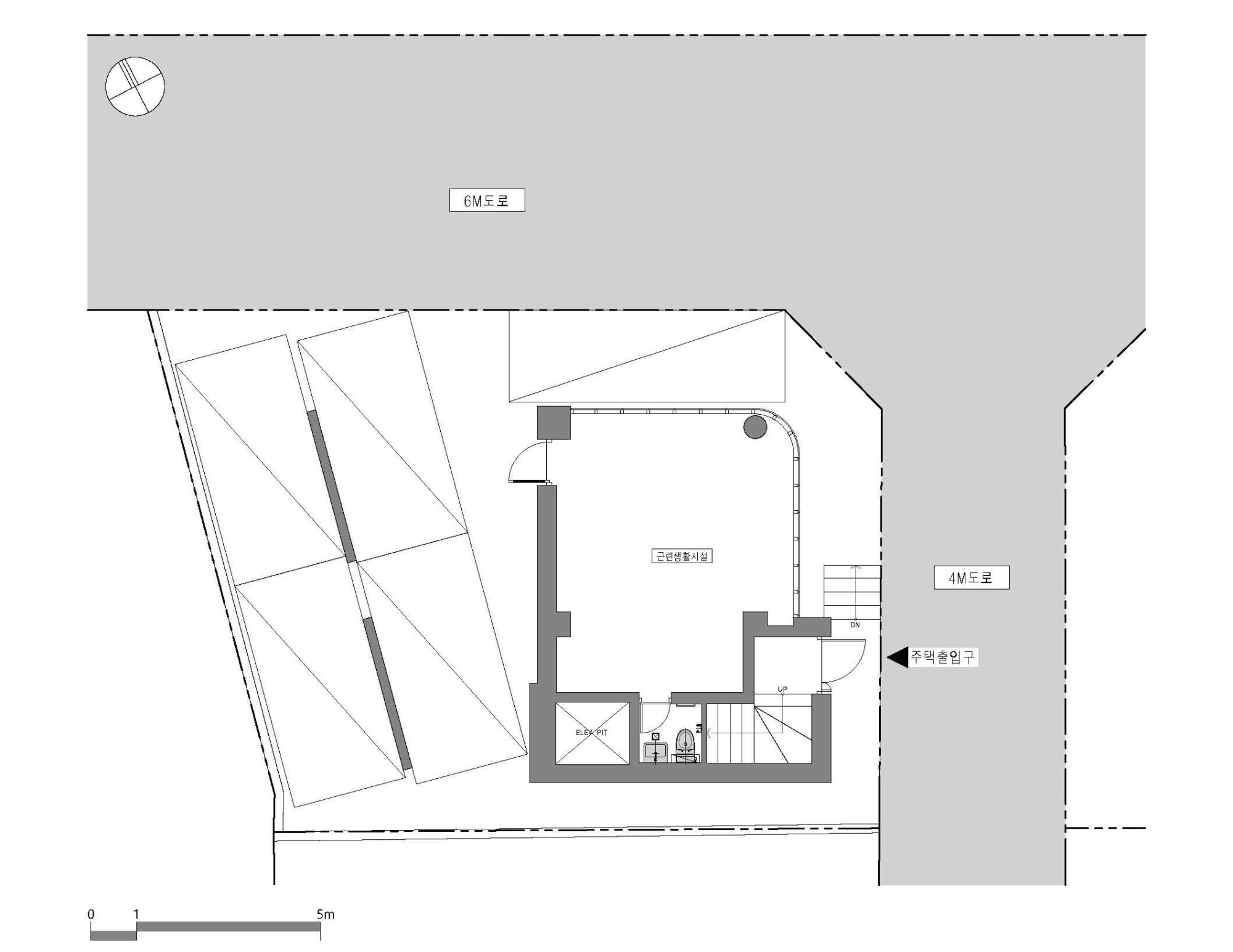
그렇게 4m와 6m 도로가 만나 좁은 도로이지만 시각적으로 잘 드러나는 곳에 위치한 모퉁이 땅에 건물을 어떤 모습으로 앉혀야 할 것인가의 고민에서부터 프로젝트가 시작됐다. 모퉁이 집은 모든 것이 교차하는 광경을 한눈에 볼 수 있는 장소로, 동네의 교차점, 세 방향으로 뚫린 작은 도로의 일상 풍경이 사는 사람의 일상과 얽혀 이야기를 만들어 내길 기대했다.
청년과 신혼부부 위주의 임대주택으로 계획된 10세대의 작은 다세대 주택이 내 집, 그리고 우리 동네로서의 애정을 쌓아가기 위해선 간섭이 생기더라도 길과 더 많이 만나고 관계할 여지를 만들어야 하겠다는 생각이 있었다. 동네를 관찰하는 확대경이 결국 민원이라는 결과를 낳았지만 말이다. 더해서 동네 사람들이 좁은 길에서 맞닥뜨리게 될 ‘라운딩’의 모습이 ‘긴장’과 ‘예민함’이 아닌 ‘느슨함’과 ‘부드러움’으로 비치길 바랬다. 주변의 건물주, 거주민들이 부디 이런 마음을 이해해주고 넉넉한 마음으로 이 곳에 사는 사람들이 자연스레 스며들 수 있는 기회를 줄 수 있기를 기대한다.


도시주거에서 프라이버시 문제는 불가피하게 선택적인 문제일 경우가 많다. 창을 통해 밖을 내다보려는 욕망과 보이고 싶지 않은 욕망은 항상 충돌하게 된다. 저 푸른 초원 위에 집을 짓는 경우가 아니라면, 내부의 모습은 보이지 않으면서 충분히 밖의 도시 풍경을 바라볼 수 있는 창을 갖기란 쉽지 않은 일이다.
심미적인 것과 기능적인 것 사이의 합의점에서 건축가에 의해 선택되는 창의 형태와 크기는 건축주가 아닌 불특정 사용자의 입장에선 만족스럽지 않을 수 있다. 채광과 환기 등의 환경적 문제가 해결된 상황이라면, 프라이버시 문제는 사용자가 커텐, 블라인드 등을 사용해 선택적으로 통제할 수밖에 없다. '라운딩'의 경우 인접대지는 아파트의 측벽부와 면해있었고 주변의 주택들 또한 모두 도로로부터 이격 되어 있어 법적으로는 문제가 없었지만 사생활 침해의 이유로 6m 도로 건너편 주민들이 차면시설을 요구하여 결국은 불투명 시트지를 창에 바르는 정도로 합의를 봤다.
좁은 도로가 교차하는 대지는 보통 가각전제가 되어 있는 경우가 많다. 이럴 경우 건물의 형상은 가각전제의 사선을 따라 형성되는 것이 보통의 경우다. 직육면체의 형태에서 모서리를 잘라낸 형태라 보면 되겠다. 이는 모퉁이 땅에 대한 디자인 접근에서 수동적 행태라 보았고 우린 흔히 보는 직선의 형태가 아닌 곡선으로 교차로를 잇는 좀 더 적극적인 모퉁이 활용에 대한 전략을 택했다. 둥글게 돌아가는 면은 형태적인 접근에서 더 나아가 시선과 사람이 교차하는 모퉁이집의 의미를 더 부각하며, 매스를 조각하는 움푹 파낸 자리에 계획한 발코니는 이곳에 사는 사람들에게 길과 만나는 접점을 제공한다.


주택가이지만 주변에 업무시설과 올림픽공원과도 인접하여 1층에는 상가를 계획하였다. 총 10세대로 이루어진 주택의 엘리베이터는 반층 정도 올라와 2층부터 시작되며, 이는 1층 상가의 활용을 높이기 위한 시도이다.
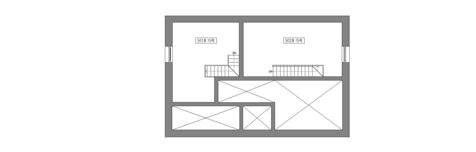
청년, 젊은 직장인, 신혼부부 등이 거주할 임대주택을 요구한 건축주를 위해 주택은 1룸 2개, 1.5룸 5개, 2룸 1개, 1.5룸+다락 1개, 1룸+다락 1개의 다양한 세대로 구성했다.
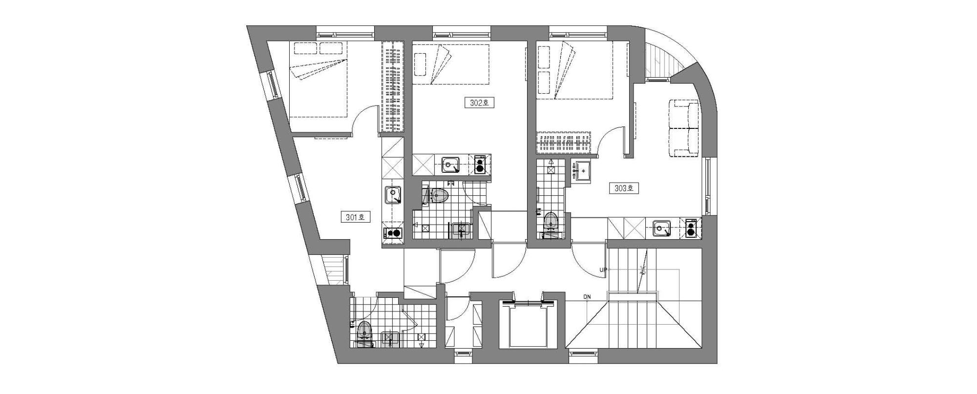
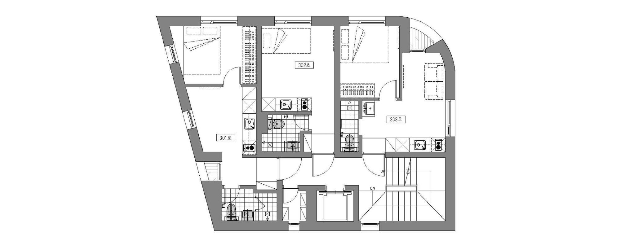
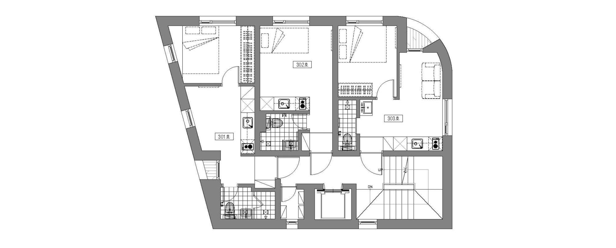
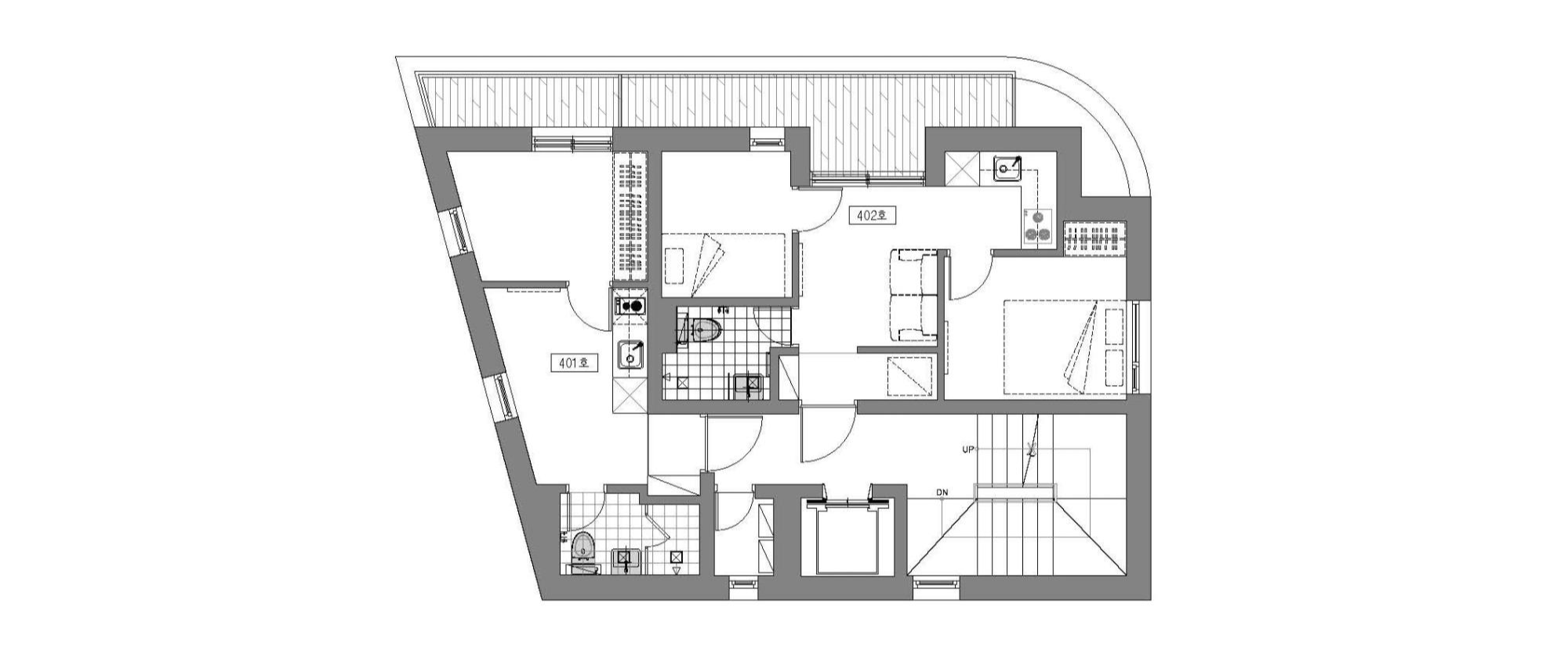
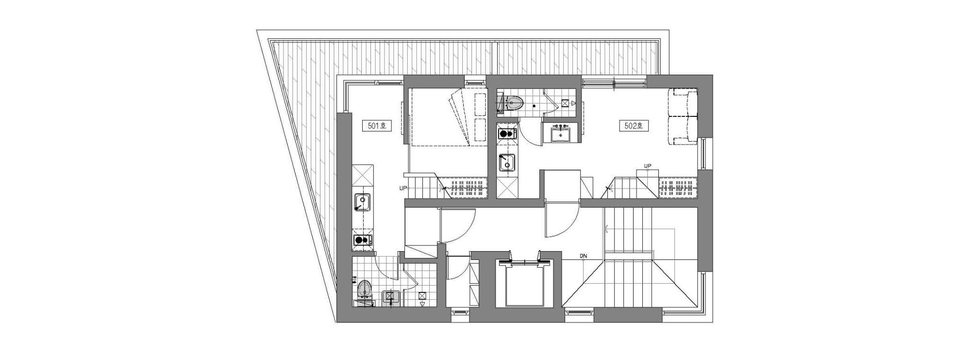
■ 동일한 구성의 2, 3층 세대
2, 3층은 1.5룸 2개와 1룸 1개로 세대 구성을 동일하게 계획했다.




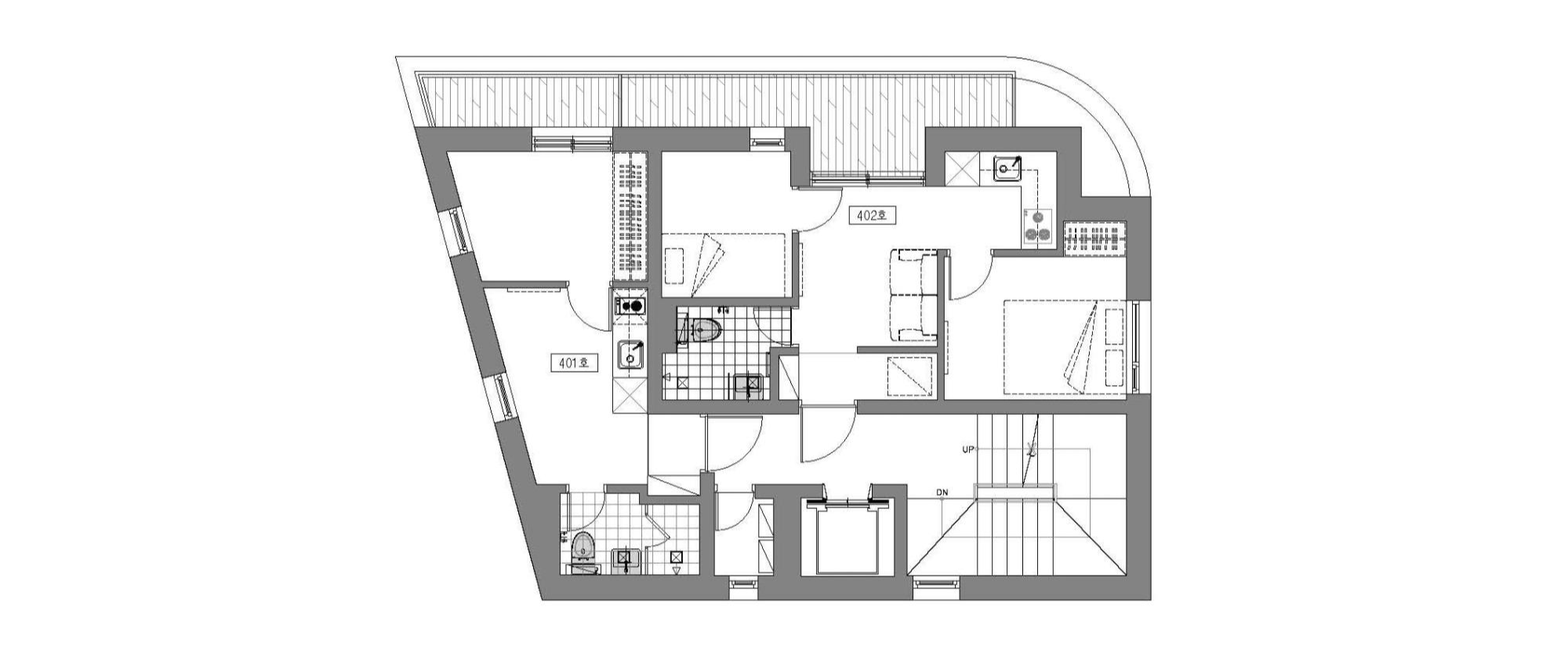
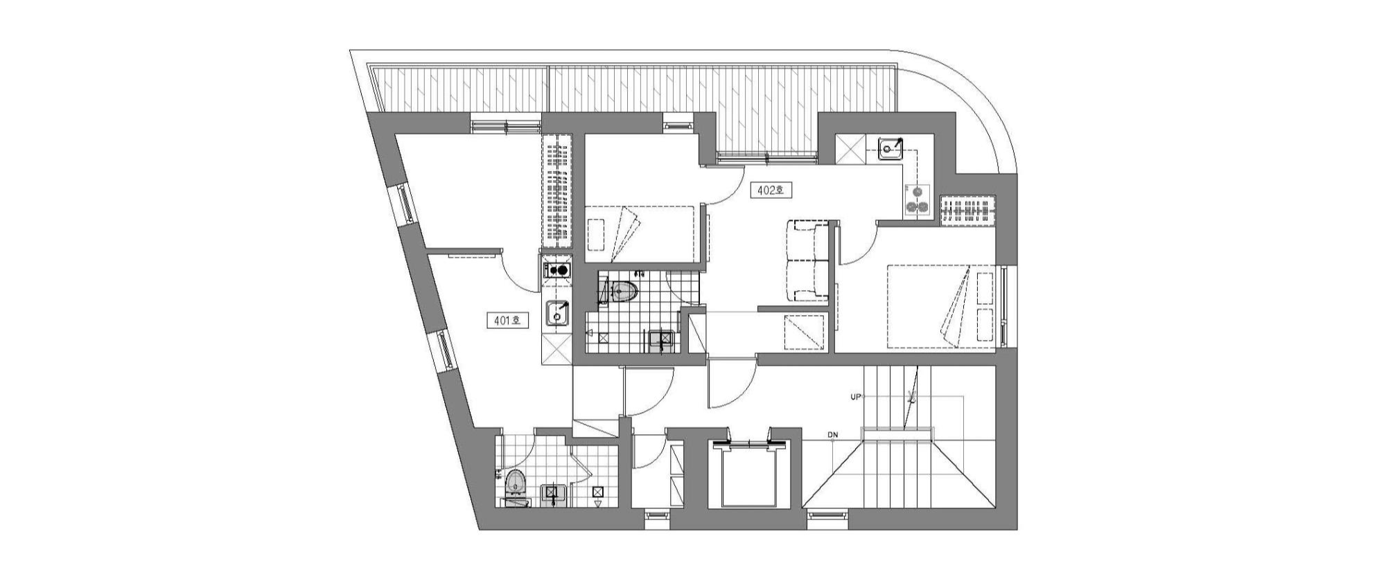
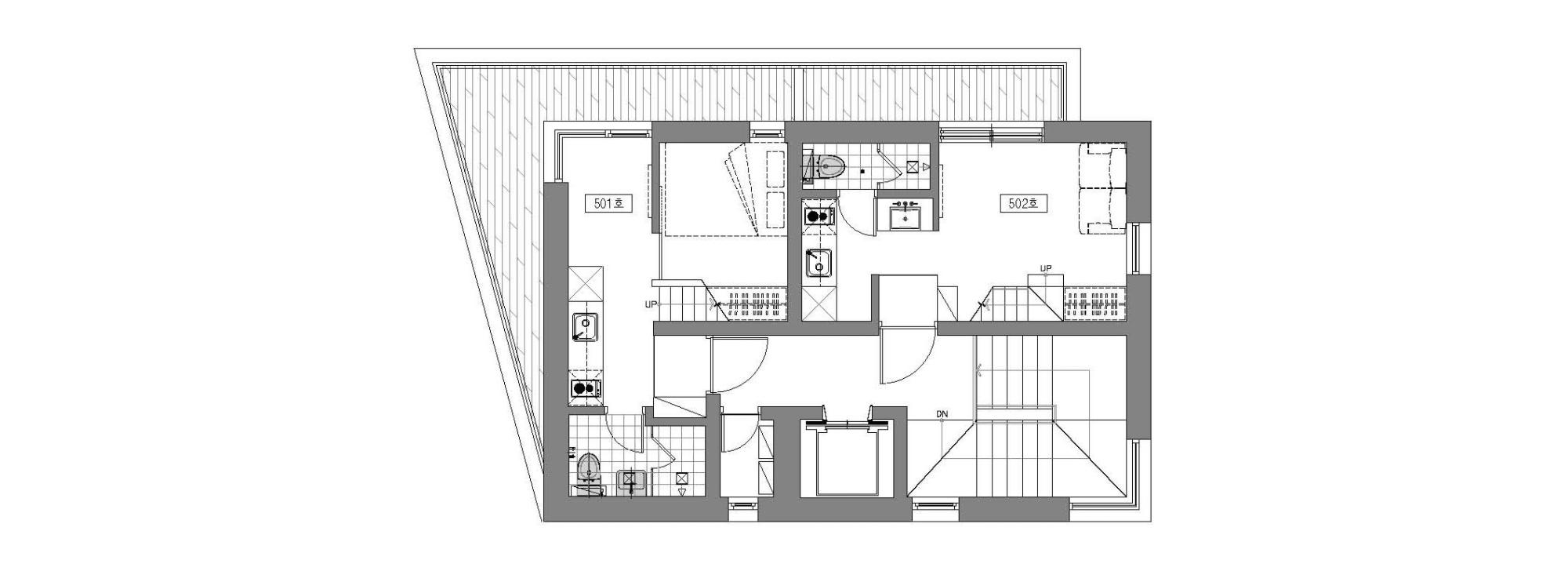
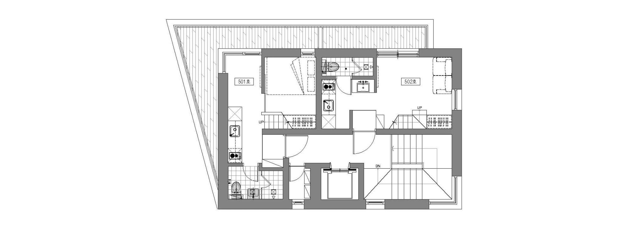
■ 베란다가 있는 4, 5층 세대
4층과 5층은 정북 일조 사선제한으로 후퇴된 부분에 베란다를 만들었으며, 4층은 1.5룸 1개와 2룸 1개, 5층은 각각 다락이 있는 1.5룸과 1룸으로 구성된다.








주변에 지어진 다세대주택의 경우 불법의 흔적이 여기저기 보인다. 가장 흔히 보는 불법 부분은 정북일조 사선제한으로 후퇴된 부분에 샌드위치 패널이나 창호 등을 설치하여 내부 공간화한 것이다. 우리는 몇 평이라도 임대면적을 늘이고 벌금 몇 번 내고 나면 이익이라는, 불법을 안 하면 나만 손해다라는 잘못된 인식에 휘둘리지 않길 바랐다. 다행히 건축주는 합법의 범위에서 건축과 운영을 하시길 바라셨고 지금의 상황에서 그 당연한 결심이 참 다행이었다는 생각이 든다.
2019. 11월부터 시행되는 건축법에 의하면 불법건축물에 대한 이행강제금 횟수 제한이 없어져 원상복구까지 벌금을 내야 하는 상황이 됐다. 거기에 더해 벌금의 가중 범위가 2배가 됐다. 이는 결과적으로 불법을 통해 얻는 수익보다 벌금이 더 많을 수 있다는 것이고 그것도 몇 번으로 끝나는 것이 아닌 불법이 해소될 때까지 쭉 부과된다는 것이다.
불법 행위는 건축주에게나 사는 이에게나 모두 손해다.
부디 이런 인식이 모두에게 상식이 될 때가 빨리 오기를 기대한다.





건축개요
위치: 서울 송파구 방이동 193-8
용도: 다세대주택(10세대), 근린생활시설
규모: 지상5층
대지면적: 162.00㎡ (49.01py)
건축면적: 95.21㎡ (28.80py)
연면적: 321.56㎡ (97.27py)
건폐율: 58.77%
용적률: 198.49%
구조: 철근콘크리트 구조
외부마감: 벽돌타일, 칼라강판
창호: 3중유리 PVC 시스템 창호
바닥: 강마루
사진: 박건주
시공: ㈜마루디자인건설
설계: 투닷건축사사무소