
영종도 상가주택 '달리'
다리가 놓이기 전의 영종도는 제대로 마음먹고 시간 내지 않으면 가기 힘든 꽤 먼 섬이었다. 인천의 선착장에서 영종도의 선착장으로, 정해진 때에 점에서 점으로 느릿하게 이동하는 뱃길은 일상의 경로이기보다는 일탈의 여정에 가까웠다. 영종도라는 섬 안으로 들어오게 되면 정해진 시간까지는 그 섬 안의 매력적인 곳에 집중하며 시간을 보내고 기억에 담을만한 어떤 것들을 그 안에서 행하고는 추억이라 이름 붙이고는 했다. 그래서 영종도는 흥미로운 섬이었다.
대지가 위치한 곳은 예전의 구읍뱃터 근처 휴양형 단독주택지로, 휴양형 단독주택이란 애매한 명명 안에는 옛 흥미로운 섬의 기억을 되살리겠다는 의지 같은 것이 엿보이고 일상과 비일상의 혼재를 그리고 있는 듯하다. 그러나 겨우 이름만 남아 있는 구읍뱃터, 관광지로서의 역할도 퇴색된 이 자리에 명명한 대로 숙박과 주거가 섞인 휴양형 주택을 짓는다는 것은 어려운 숙제였다.


생활의 터전 영종도.
은행에서 퇴직한 건축주는 영종도란 낯선 섬에 피자가게를 열었다. 허허벌판이었던 이곳에 뿌리를 내린 지 10년을 훌쩍 넘긴 지금, 영종도는 그들에게 생존의 방편을 제공하는 곳이자 그들의 일상이 영위되는 생활의 터전이 되었다. 남은 여생도 영종도에서 보내게 될 거라는 건축주의 예감, 또는 바람과 그들의 집이 들어설 휴양형 주택지가 오버랩되며, 비일상과 일상이 혼재된 이곳에 지어질 집은 그들에게 생존의 방편이자 일상이 영위되는 생활의 터전으로 기능해야 마땅할 것이라는 생각이 들었다.
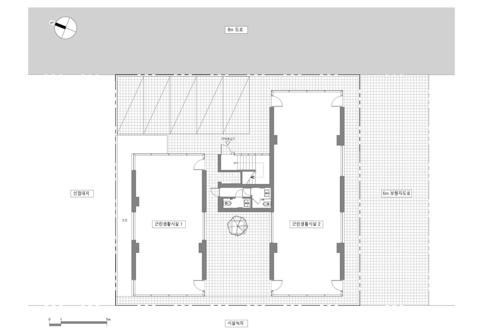
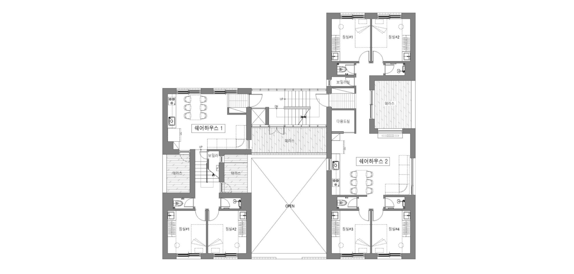
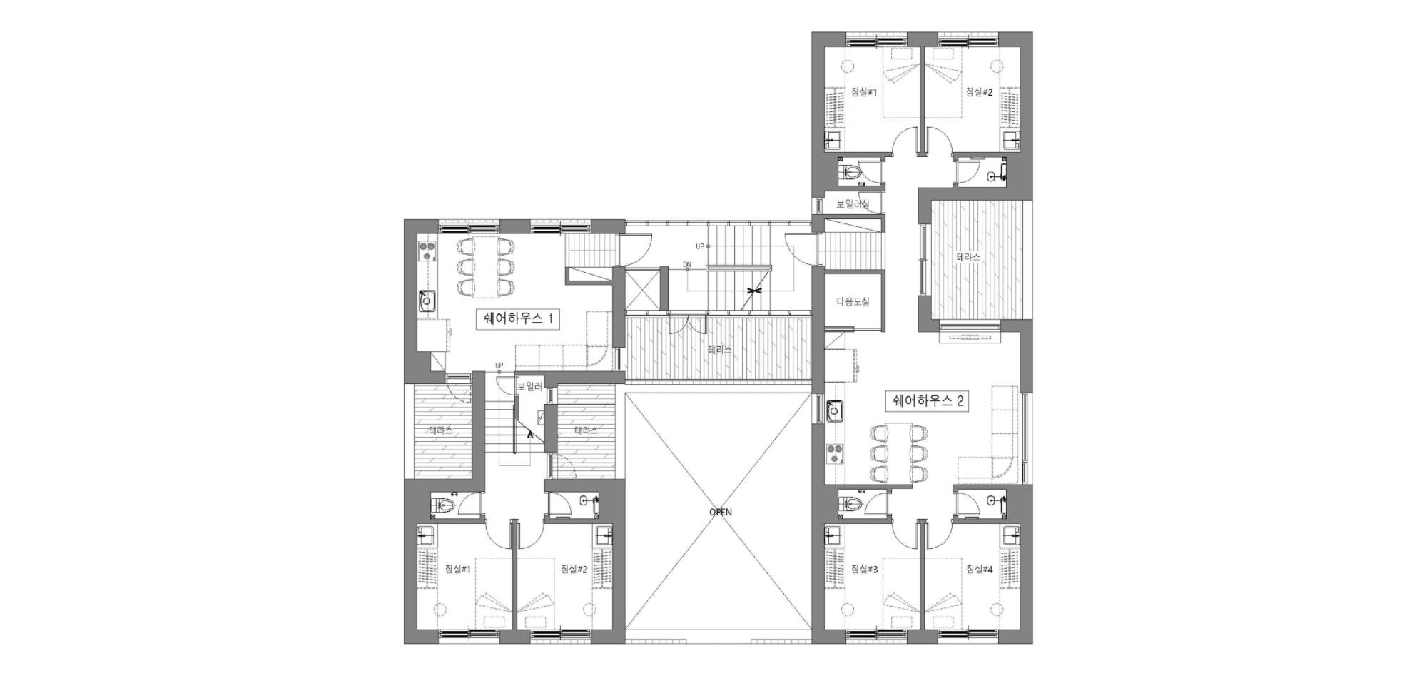
따라서 우리는 건축주가 거주할 1가구를 제외한 2가구는 쉐어하우스 또는 게스트하우스로 운영될 수 있는 구조로 단위세대를 계획하고, 1층의 상가와 쉐어하우스(또는 게스트하우스)가 서로 조응하면 좋은 시너지를 만들어 낼 수 있겠다는 생각에 집의 중심부에 널찍한 중정을 두어, 상권이 형성되기 어려운 지역에 스스로 매력적인 공간을 품어 주변의 상가와 차별화하였다.




달리 보여지길 기대하다.
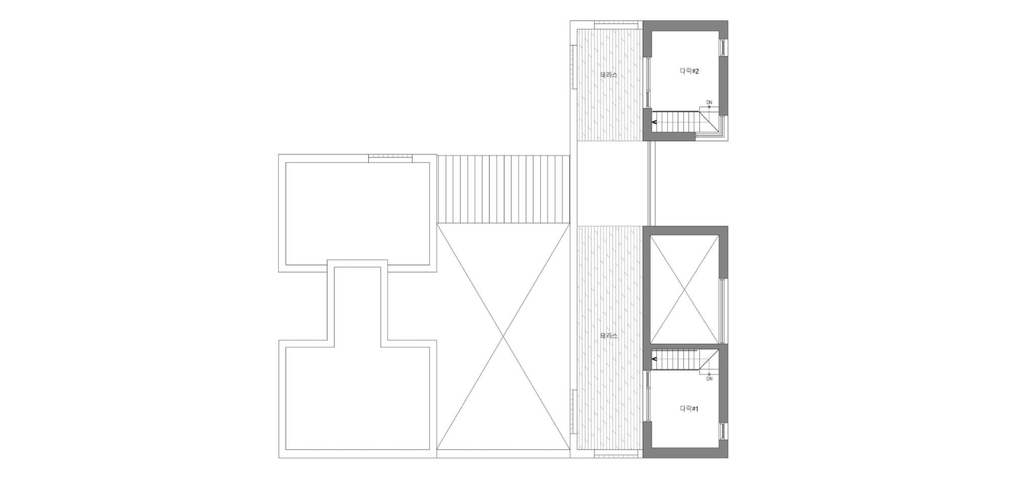
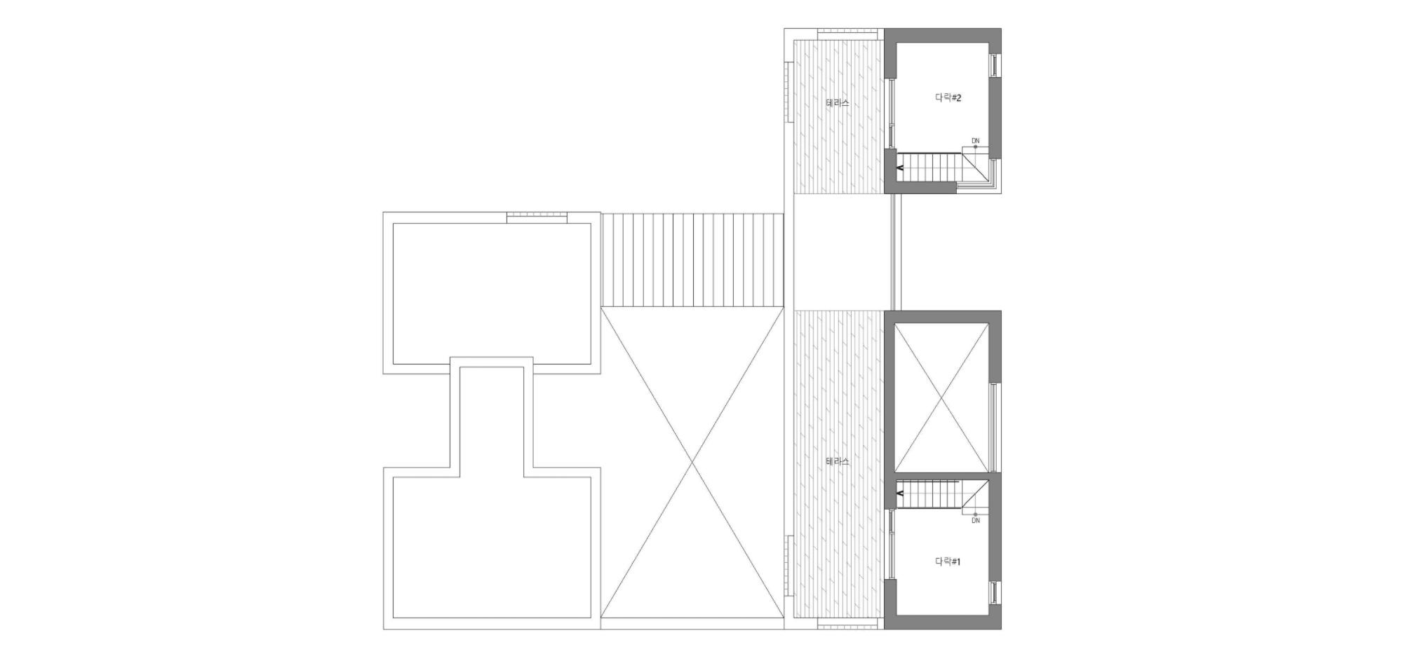
비슷한 토지면적과 규제의 틀 안에서 최대 면적과 가구 수를 확보하기 위해 결국 비슷비슷한 골격을 가지게 되는 일반적인 상가주택 토지와 달리, 건물이 들어설 대지는 일반적인 상가주택 토지의 1.5배 정도의 크기에 건폐율은 50%, 용적률은 120%의 제한을 가지고 있어 기존의 틀과는 달리 담아볼 여지가 많은 조건을 가지고 있었다. 이곳에서 우리는 층별로 세대를 쌓는 방식이 아닌 땅에 펼쳐 놓는 방식으로 주택을 배치하였으며, 가운데 중정을 중심으로 계단과 주택이 삼면을 둘러싸는 형태의 건물 볼륨을 만들었다. 이는 외부에서 봤을 때 건폐율 50%의 볼륨이 아닌 80% 정도의 볼륨으로 보이는 효과를 가지며, 두 채의 집을 합쳐 놓은 것 같은 볼륨은 주변의 주택과는 확연히 다르게 앉혀져 있음을 드러낸다.


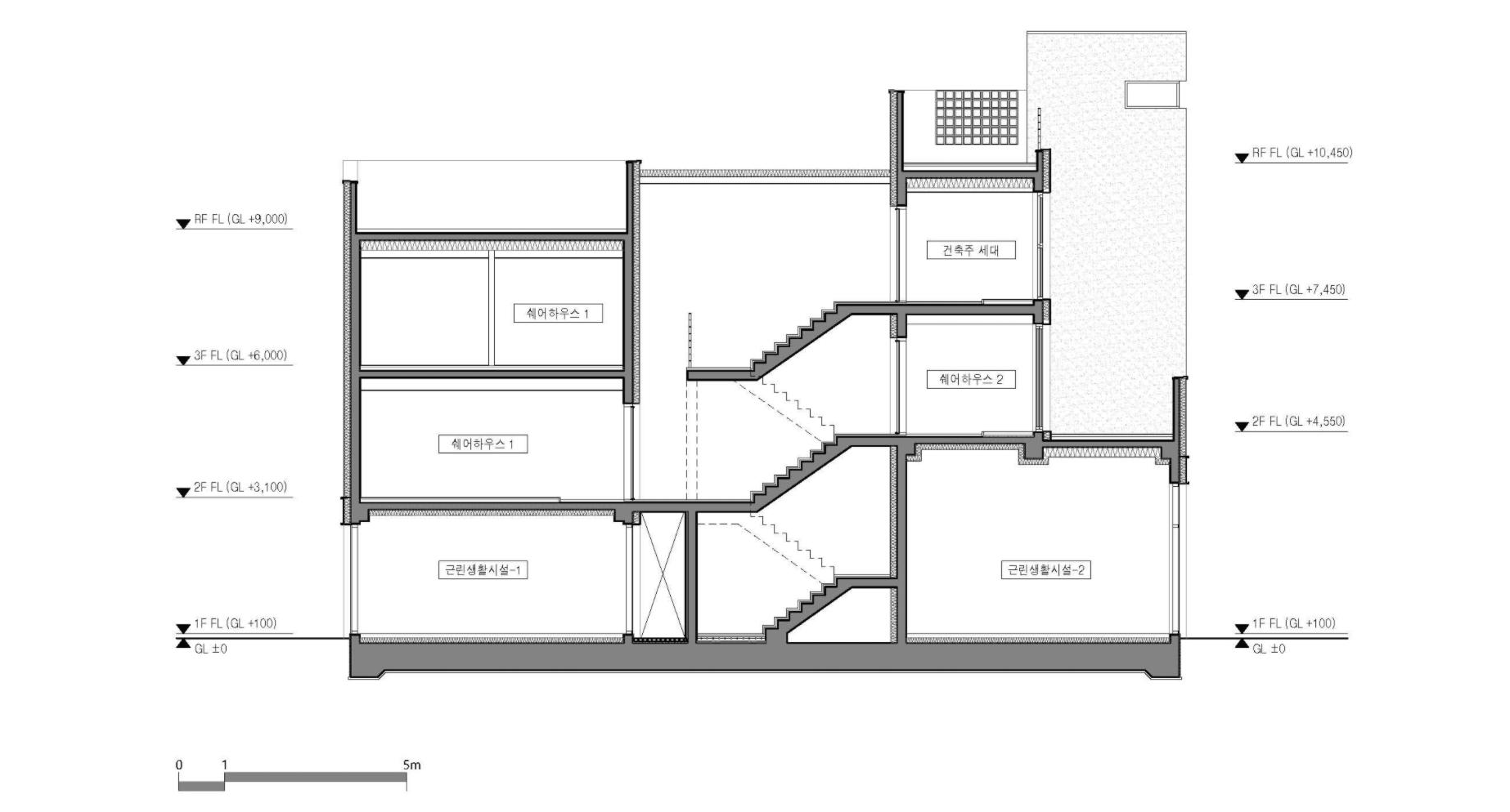
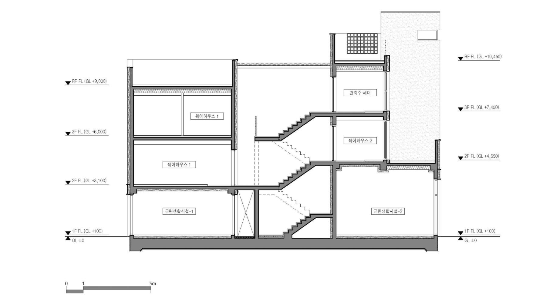
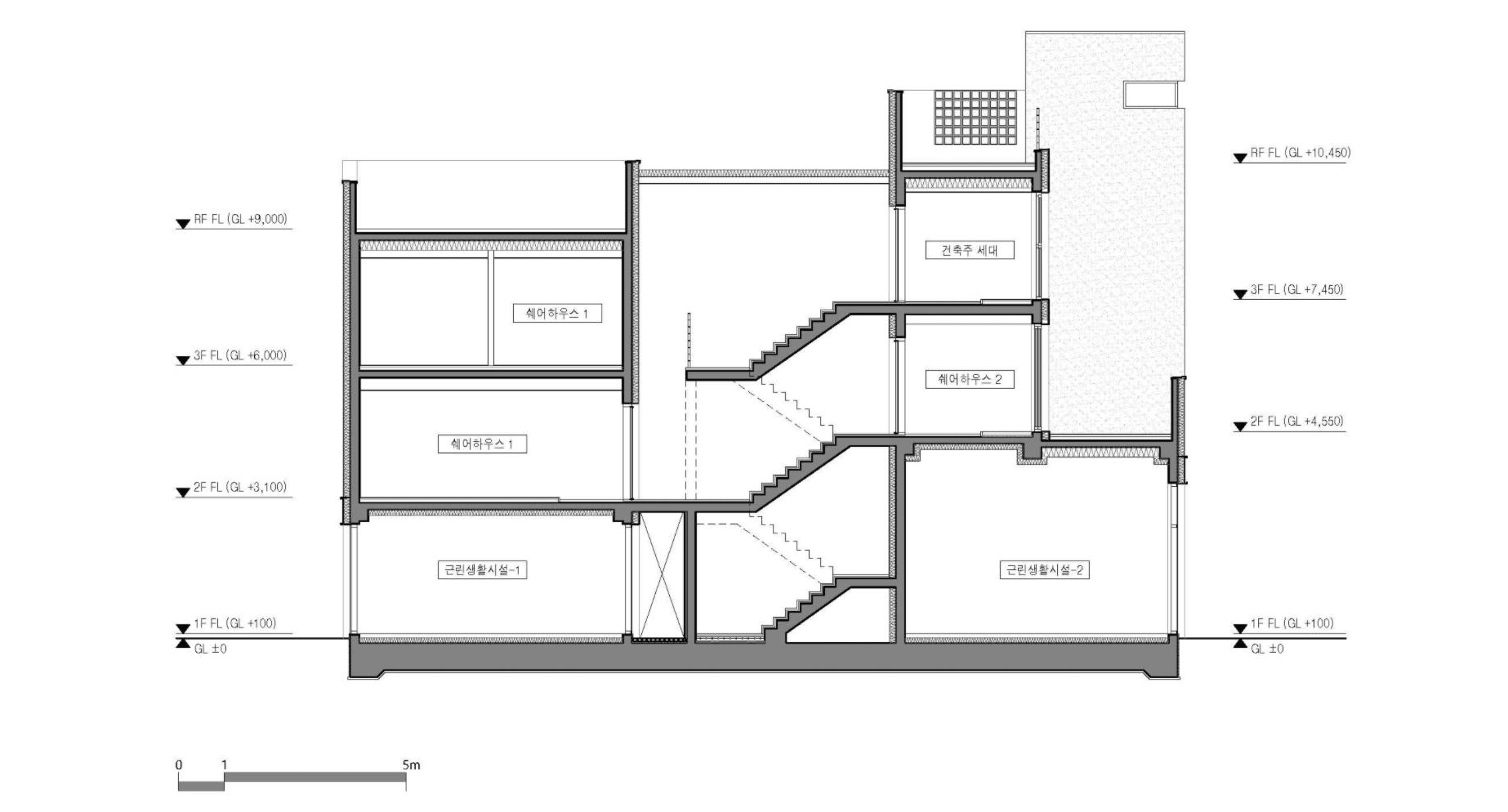
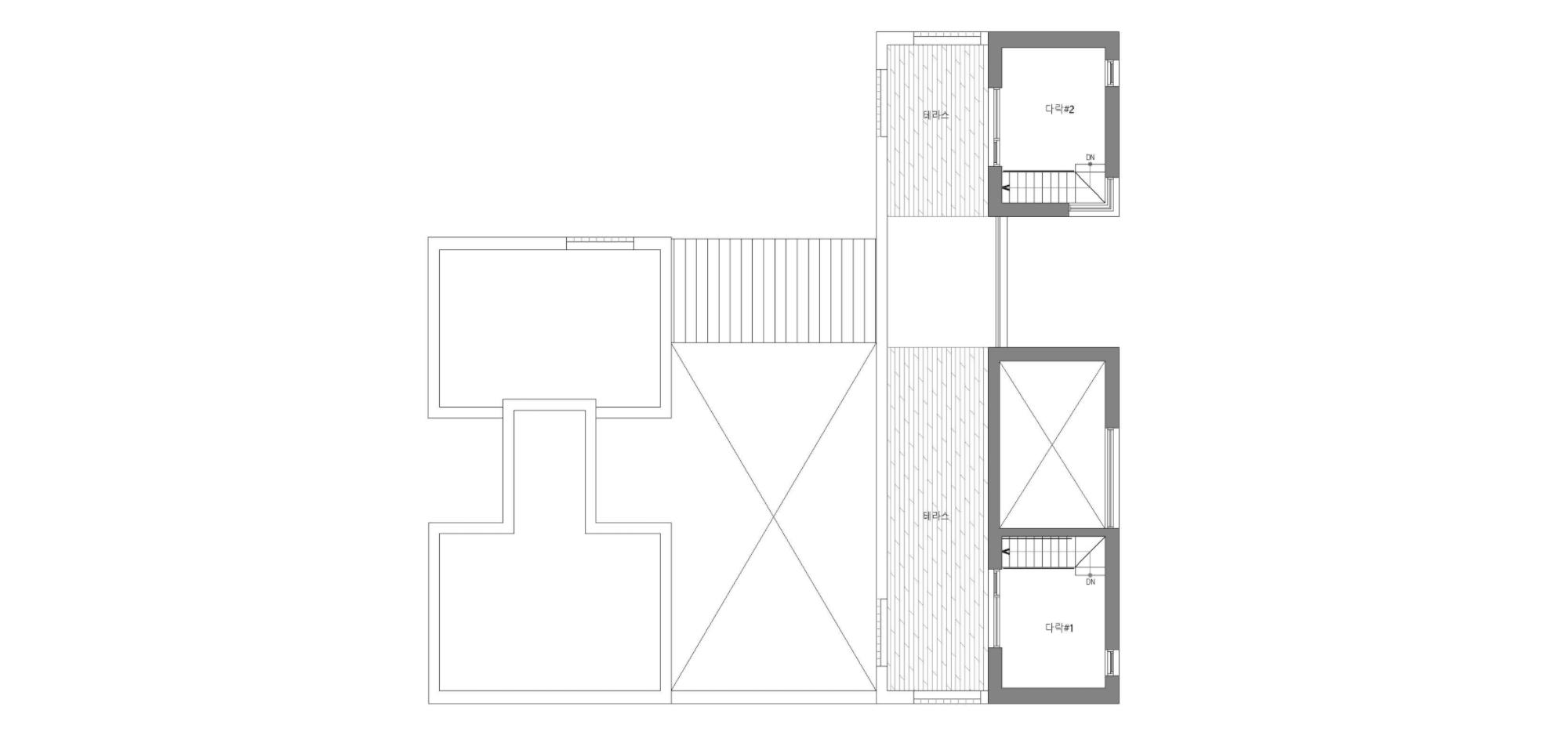
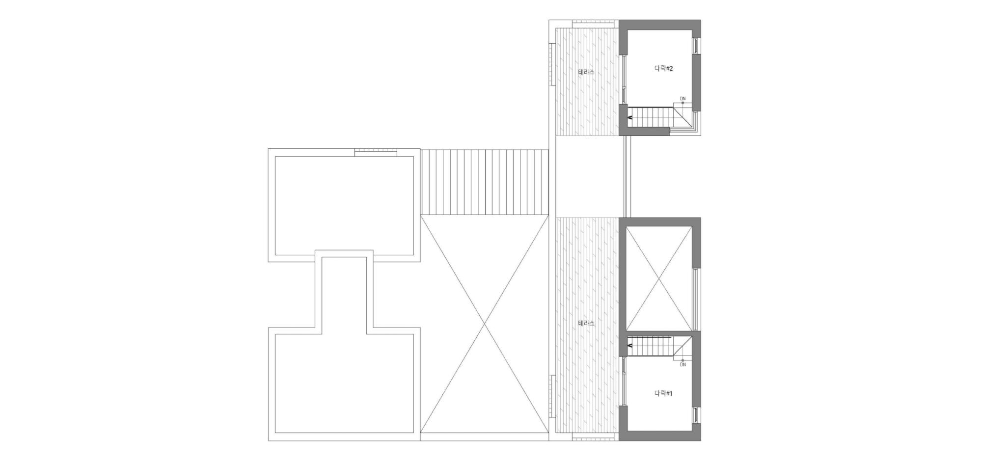
복층으로 구성된 주택 내부의 경우 계단에 의해 반 층씩 엇갈리게 되는 스킵플로어 방식을 적용해, 계단이 수직과 수평 두 방향 모두의 이동 동선을 감당하여 효율적 공간 사용이 가능해지고 층의 명확한 분리가 모호해져 층간 이동의 심리적 부담을 덜 수 있도록 계획했다. 또한 더 나아가 집과 집을 연결하는 공용 계단에서도 이 방식을 적용해, 계단의 폭은 더 여유 있게 확보하면서 공용면적을 최소화하였다.
층과 층을 연결하는 계단, 집과 집을 연결하는 복도를 합쳐 놓음으로 우린 계단의 좀 더 확장된 다른 쓰임을 기대했다. 집과 집이 반 층씩 엇갈려 마주함으로 아마도 사는 이들의 좀 더 빈번한 마주침이 발생할 터이고 그러한 마주침은 처음의 어색함을 넘어 친근함과 익숙함의 정서를 불러일으키는 동기부여를 제공할 것이다.
■ 쉐어하우스 1 (2, 3층) / 쉐어하우스 2 (2층)






■ 건축주 집 (3층, 다락)



상가주택의 익숙한 인상을 만드는 것 중의 또 다른 하나는 창이다. 창은 ‘보고 싶은 것’과 ‘보이는 것’이 끊임없이 충돌하는 계면으로, 내가 사는 집이라면 그 욕망의 조절은 의외로 쉬울 수 있으나 임대를 목적으로 한 상황에선 ‘보고 싶은 쪽’에 기울고 가급적 큰 이중창을 내고 난간을 설치하는 방식으로 나타난다. 그리고 이러한 상황은 우리에게 익숙한 상가주택, 빌라의 인상을 만들어 냈다. 우린 이 익숙함에서 벗어나기 위한 장치로 이중창 밖에 큐블럭을 설치했으며, 이는 ‘보이는 것’의 두려움을 고려한 장치이자, 보는 방식을 달리하는 장치이기도 하다.





이러한 우리의 일련의 시도는 다르게 보여 이목을 끌어야 한다는 강박이기보단 익숙한 것들을 다르게 생각해 보기 위함이다. 그 다름이 익숙함에 틈을 만들고 지루함이 아닌 즐거움으로 사는 이에게 받아들여질 수 있길 기대한다.






건축개요
위치: 인천광역시 중구 중산동 1934-4
용도: 다가구주택(3가구), 근린생활시설
규모: 지상3층
대지면적: 426.20㎡ (128.93py)
건축면적: 207.60㎡ (62.80py)
연면적: 488.79㎡ (147.86py)
건폐율: 48.71%
용적률: 114.66%
구조: 철근콘크리트 구조
외부마감: STO, 저스틴블럭
창호: 3중유리 PVC 시스템 창호
바닥: 강마루
사진: 박건주
시공: ㈜마루디자인건설
설계: 투닷건축사사무소