중화동 다가구주택 '골목집'

30평 남짓의 땅에 지은 다가구주택.
30대 후반의 건축주는 중랑천이 흐르고 동부간선도로변의 시설녹지가 있는 중랑천로 뒷 쪽 좁은 골목에 위치한 32평의 작은 땅에 다가구주택을 짓기를 원했다. 30대의 직장인이 서울에서 토지를 구입한다는 것은 아무래도 큰 부담이었을 터이고 본인의 집만 짓고 살 수 있는 조건은 허락되지 않았을 것이다.
과거 이 협소한 땅들에 지어진 다가구주택이 어떻게 이 동네의 풍경을 망치고 있는지 실증된 상황에서 다시금 그에 일조하는 상황을 만들면 안 된다는 부담이 크게 다가왔다. 고민 결과 우린 집을 가급적 길에서 물려 앉히기로 했다. 길과 집의 경계를 없애고 길을 집의 안 깊숙한 곳까지 이은 후 각각의 집에 다다르게 하면 하나의 집이 아닌 여러 집이 모여 사는 동네의 모습을 담을 수 있겠다는 생각이 들었다. 마치 달동네처럼 계단으로 이어진 골목을 오르다 보면 내 집이 있고 옆집을 만나는 그런 풍경을 상상했다.






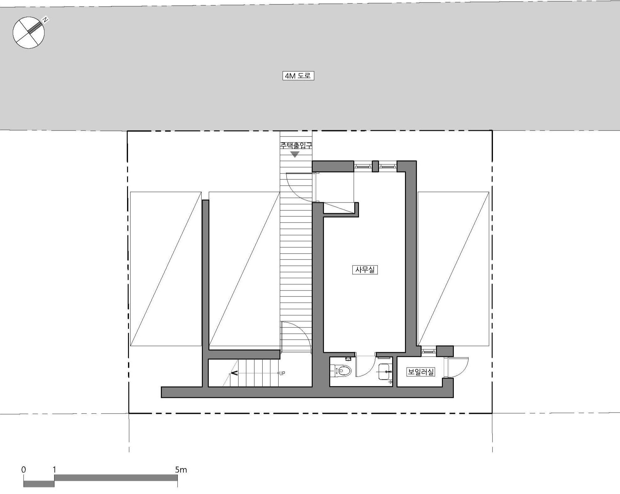
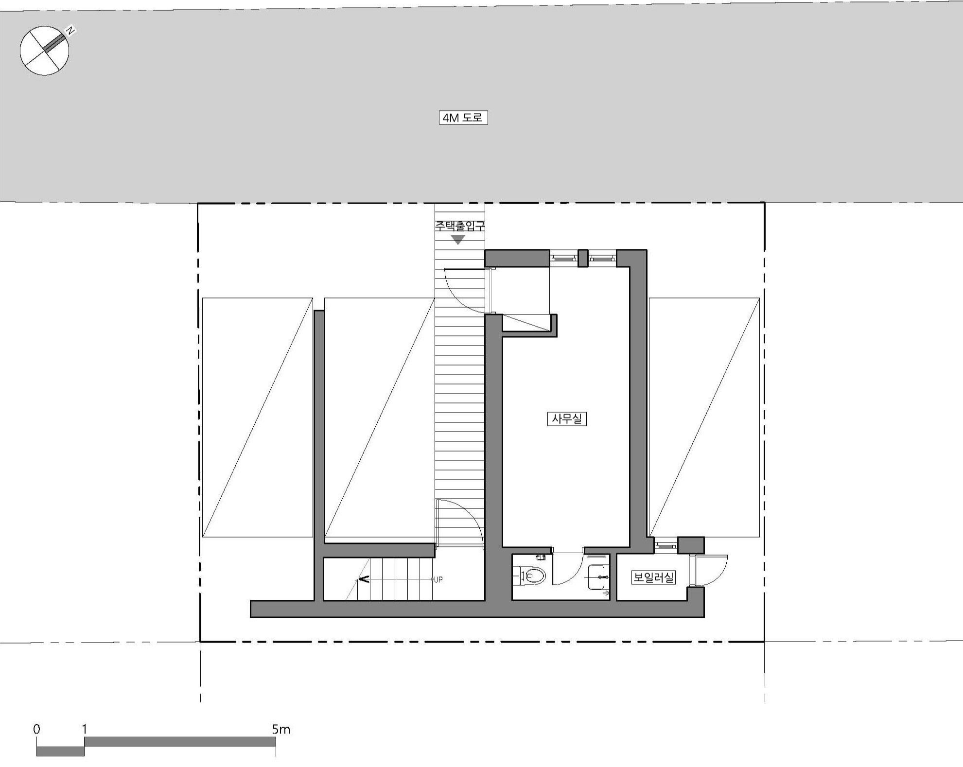
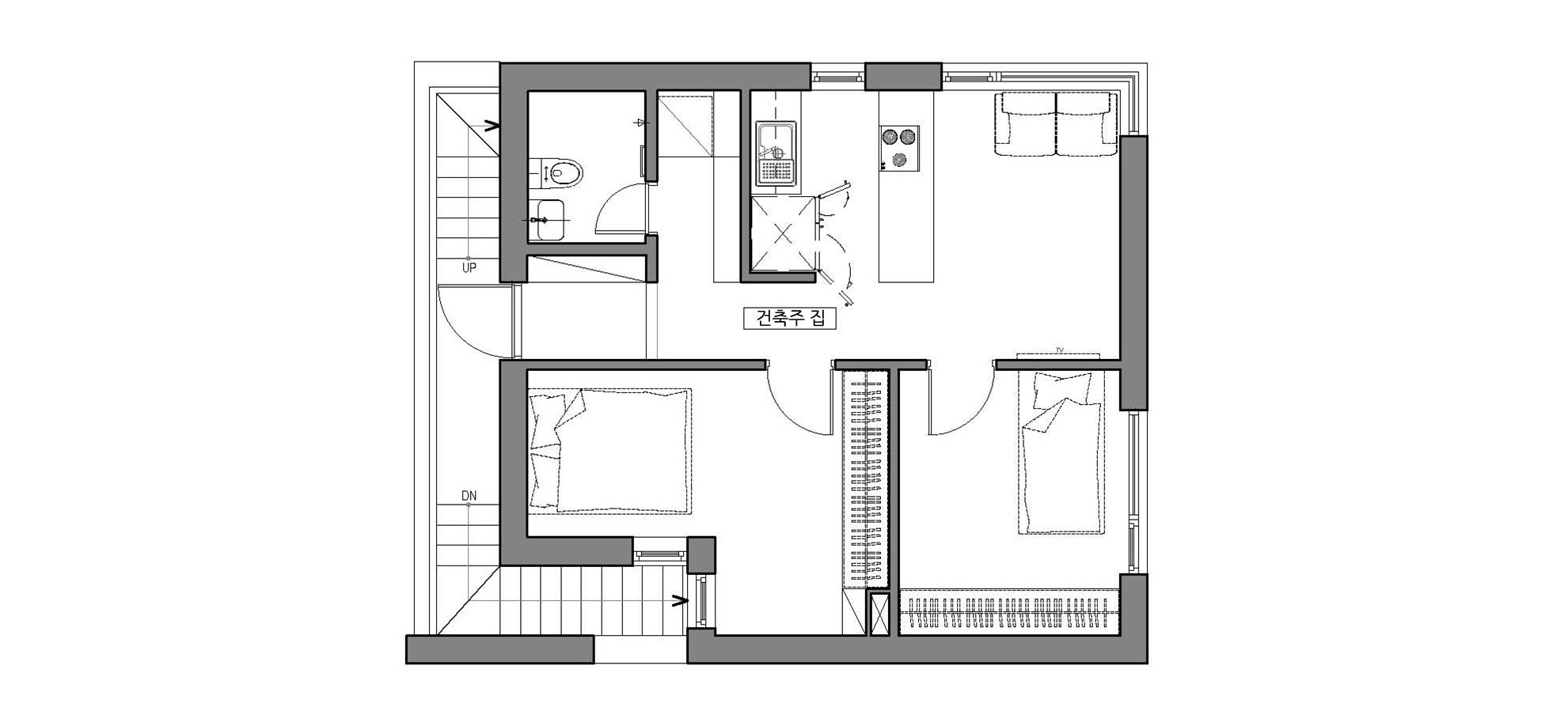
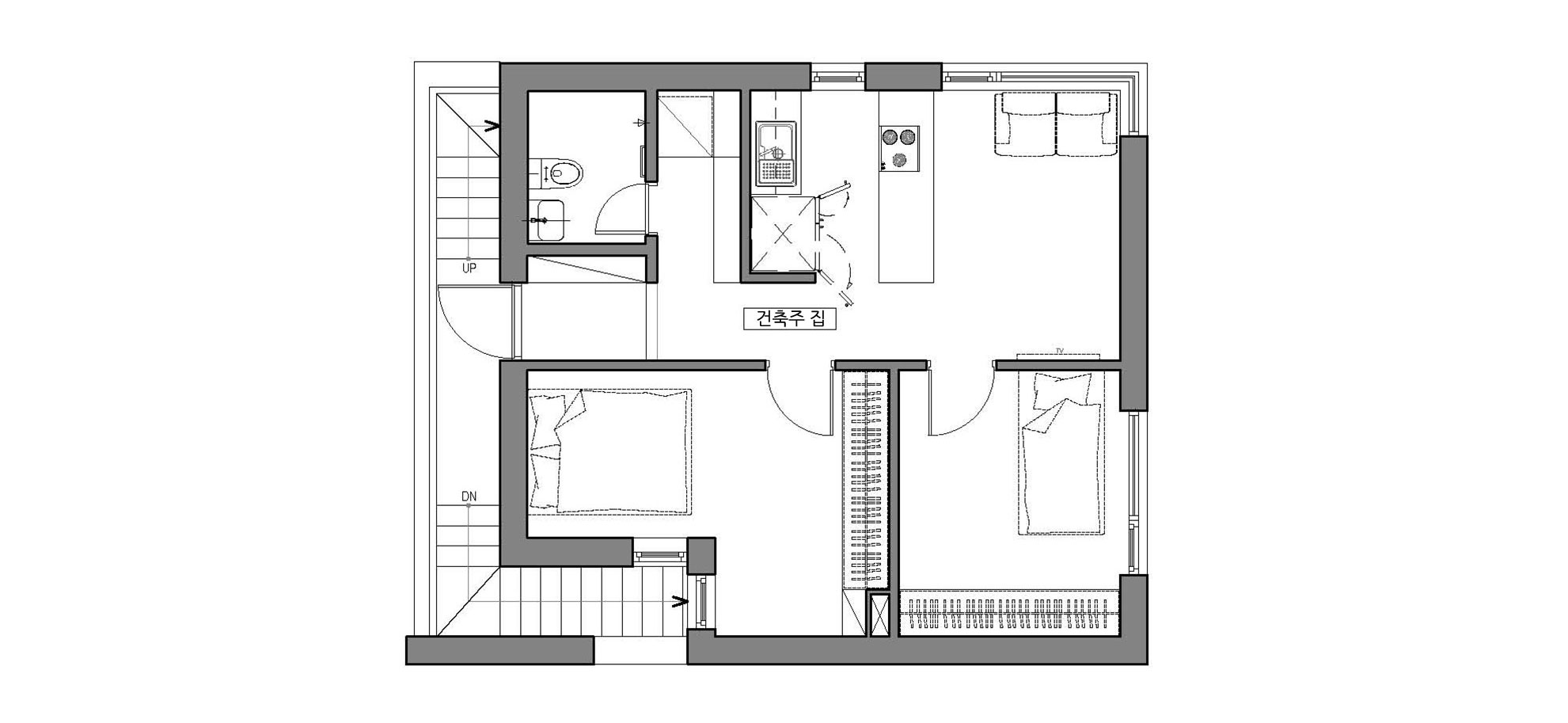
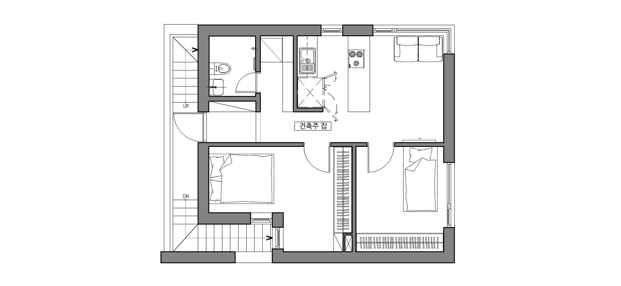
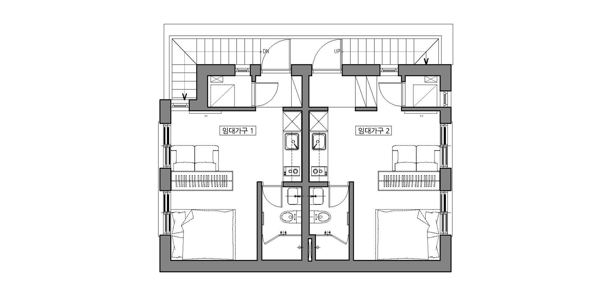
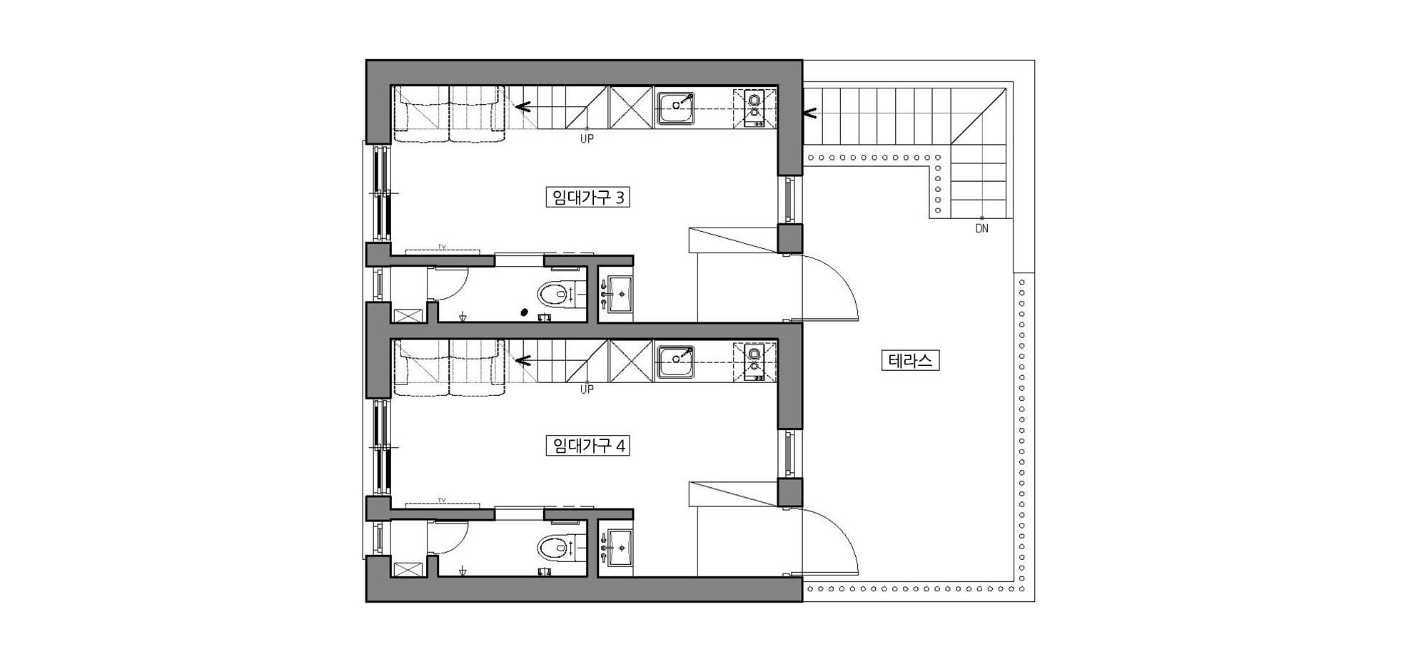
1층 작은 근린생활시설(사무실) 앞을 지나 건물의 안쪽 끝에서부터 골목(계단)을 돌아 오르면 2층의 건축주 집 앞에 이르고 다시 모퉁이를 돌아 오르면 3층의 2가구 앞이다. 그렇게 또다시 돌아 오르면 4층의 마당(테라스)에 이르게 되고 그 마당은 2가구의 앞마당이 된다. 골목은 집의 바깥쪽을 따라 돌아 오르게 되는데 모퉁이를 돌 때마다 보이는 풍경의 달라짐이 4층까지 오르는 수고에 대한 작은 위로가 되길 바랐다. 집의 바깥쪽으로 붙어 있는 계단과 통로 덕분에 각각의 집은 인접 대지의 집들과 적당한 거리를 둘 수 있게 되었고 창을 계획함에 있어서도 시선이 맞닥뜨리는 상황을 피할 수 있게 되어 사생활 보호 측면에서도 긍정적이었다.
‘골목집’을 계획하며, 자주 흥얼거렸던 멜로디가 있다. 엘튼 존의 ‘goodbye yellow brick road’. 도로시가 세명의 동반자와 에메랄드 시를 향해 걷던 노란 벽돌 길, 그들이 얻고자 했던 모든 것은 에메랄드 시가 아닌 결국 내 안에 있었다는 ‘오즈의 마법사’의 이야기처럼, 작은 땅에 흔한 엘리베이터 조차 없는 수고스러움 많은 소박한 집이지만 사는 이들에게 소소한 즐거움이 발견되는 그런 집이 되기를 기대한다.
■ 2층 건축주 집



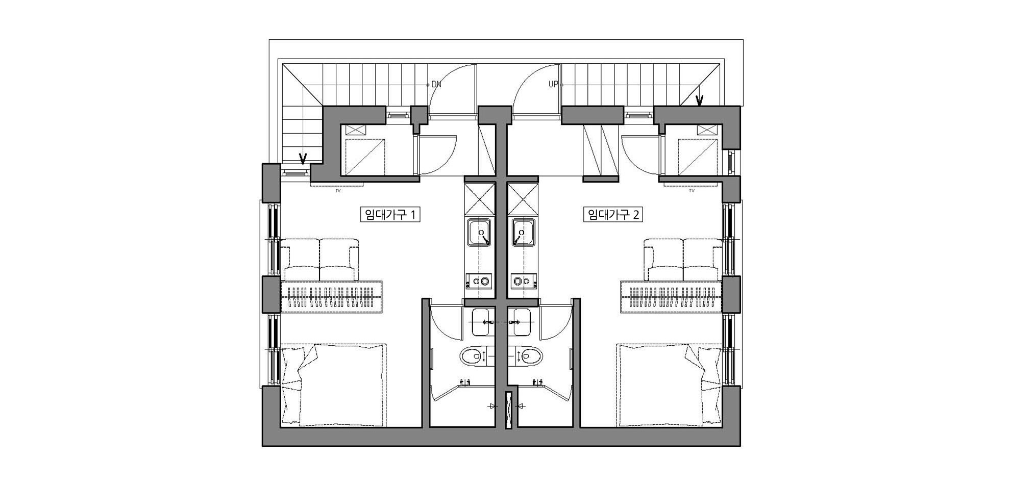
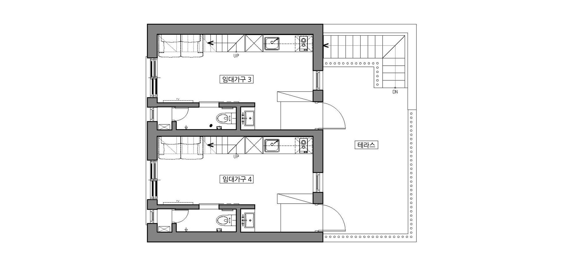
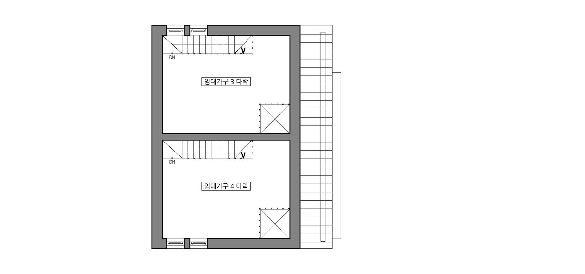
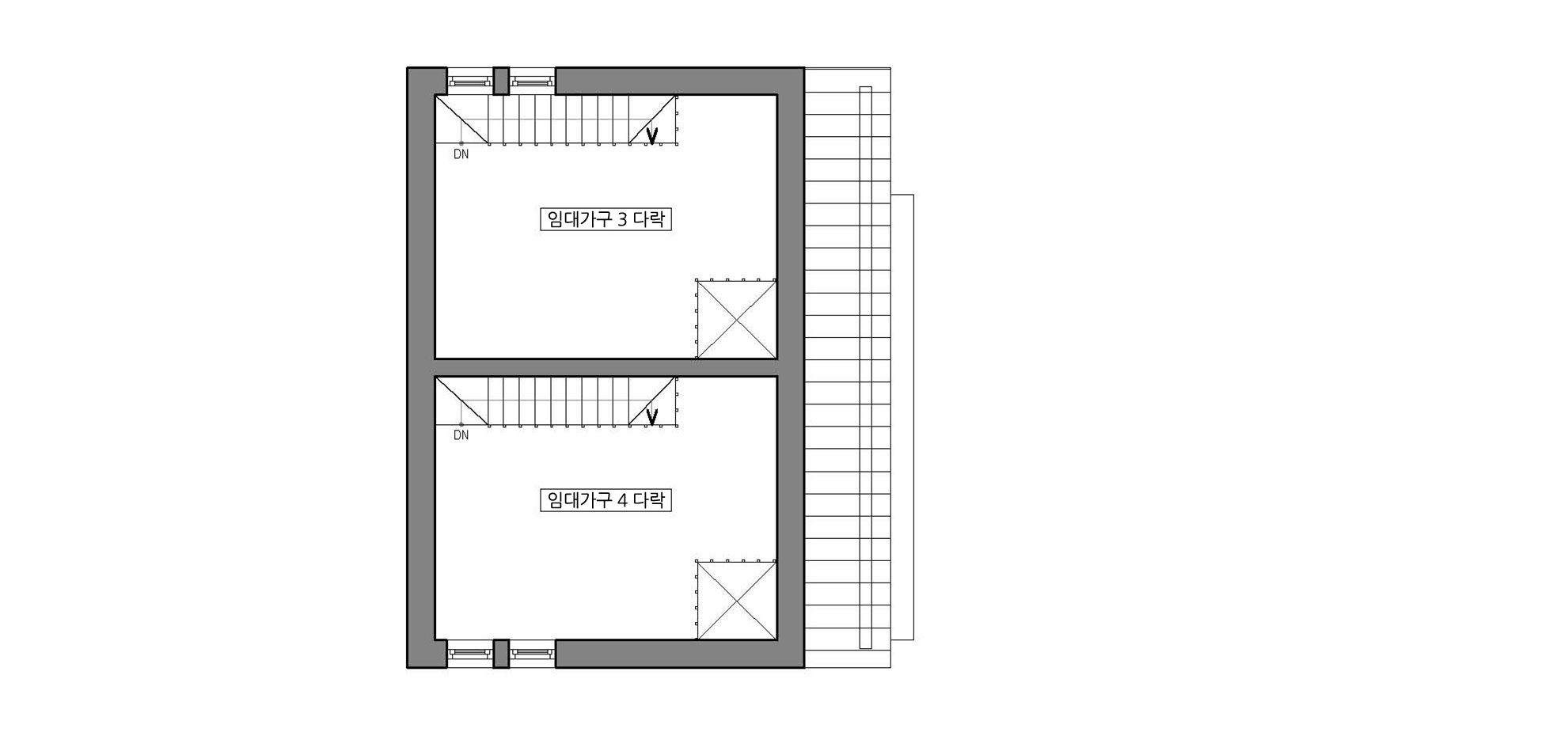
■ 3, 4층 임대가구















건축개요
위치: 서울 중랑구 중화동 328-6
용도: 다가구주택(5가구), 근린생활시설(사무실)
규모: 지상4층
대지면적: 108.40㎡ (32.79py)
건축면적: 64.80㎡ (19.60py)
연면적: 197.79㎡ (59.83py)
건폐율: 59.78%
용적률: 182.46%
구조: 철근콘크리트 구조
사진: 최진보
시공: 우리마을 A&C
설계: 투닷건축사사무소