
모조(MOJO)
: 원시종교에서 유래된 말로, ‘내 안에 잠든 긍정의 추진력을 깨우라’는 주문 같은 단어.
설계자이자 감리자이며, 동시에 건축주와 시공자의 입장에서 경험한 집 짓기는 생각보다 많이 힘들었다. 응원차 들리신 건축가가 망가져가는 우리의 몰골을 보시고 응원하듯 던진 한마디가 ‘모조’였다. 그 이후 ‘모조’는 우리 집의 이름이 되었고 잘 끝나기를 바라는 마음을 담아 주문처럼 ‘모조’를 입에 달고 살았다. 그리고 지금은 ‘모조’에서 모소장과 조소장의 삶이 이어지고 있다.
건축을 업으로 하는 사람이라면, 언젠가 본인의 집을 짓겠다는 바람은 공통된 꿈일 것이다. 이런 바람이 바람으로 끝나지 않기를 바랐던 우리는 그 것의 실현을 위한 구체적 방법을 모색했다. 가장 큰 어려움은 짐작하겠지만 돈 문제였다. 둘 다 전세살이를 하고 있는 상황이었고 갖고 있는 유동 자산도 토지를 구매하기엔 턱이 없었다. 그나마 생각해 볼 수 있는 유일한 방법은 토지를 함께 구매하는 것이었다. 그것도 서울에서는 어림없었고 도시 생활권에 속한 곳의 작은 토지 정도가 목표가 되었다. 이런 생각을 공유하고 시도할 수 있었던 바탕은 둘의 신뢰 관계에 기인했다. 동업 이전부터 이어온 시간이 20년을 넘겼고 동업을 하면서 겪었던 어려움 들을 함께 해쳐 오면서 다져진 신뢰가 없었다면 아마도 같이 땅을 사고 같이 집을 짓겠다는 생각은 하지도 않았을 것이다.

대지는 빌라촌으로 둘러싸여 있는 30평의 작은 땅으로 다행히 일반주거지역이라 건폐율과 용적률은 넉넉했다. 가장 좋았던 것은 토지 앞의 생태공원이었다. 토지와 맞닿은 보행자도로에 접해 환경부가 관리하는 아름다운 공원이 자리해 있었고 비록 작은 토지이지만 공원이 앞마당이 될 수 있겠다는 생각이 들었다.
생각지도 못한 암초, 문화재
양수리 섬 전체는 문화재 유존지역으로 건축행위를 하기 위해선 먼저 지표 조사나 시굴 조사를 시행하게끔 되어 있다. 우리 땅은 문화재청에 확인한 결과 매장 문화재가 나올 확률이 90% 이상이고 그러므로 지표조사가 아닌 시굴조사를 통해 문화재 유존 여부를 확인해야 한다고 했다. 돈과 시간이 많이 드는 일이었다. 시간과 돈 중에 우린 시간을 포기하고 국비신청을 해 시굴조사를 받았다. 3개월여의 시간을 버렸지만 다행히 문화재는 나오지 않았다. 천운이었다.

모와 조의 집 배치
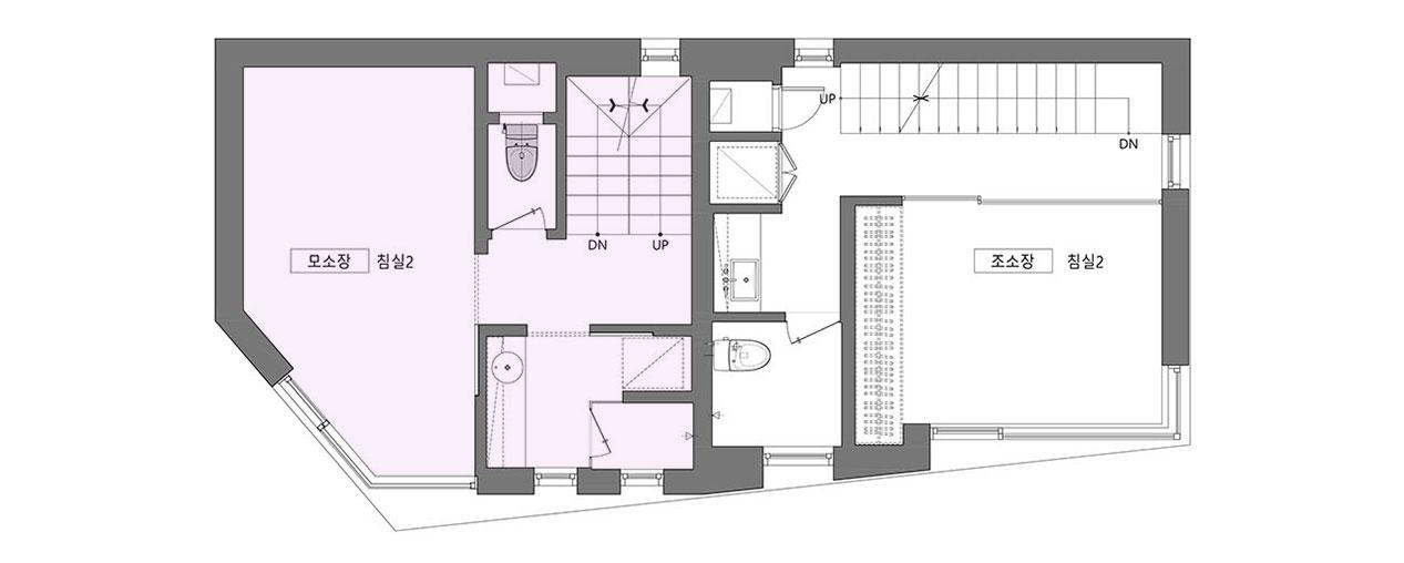
계획을 시작하며 제일 먼저 결정해야 할 것은 집을 어떤 구성으로 어떻게 앉힐 것인 가였다. 층별로 나누어 집을 배치하면 채광(향)은 동등해지고 바닥면적의 활용도는 좋아지겠지만 외부 경관에 차등이 생긴다. 그러나 땅콩집과 같은 형태를 취하고 복층 형식으로 구성하게 되면 채광(향)은 차등이 생기나 높이에 따라 달라지는 외부 경관은 양쪽이 동일해진다. 따라서 우리는 높이에 따라 달라지는 풍경(2층에서는 공원의 숲이 보이고, 3층에서는 그 너머 운길산의 능선이 겹쳐지고 4층에서는 숨겨졌던 북한강과 하늘까지 아우르는)을 선택하였다.
갈등이나 앙금이 남지 않도록 달라지는 채광의 문제(과연 어느 집이 남향을 취할 것인가?)를 조율해 내는 것이 이 집의 계획에 있어 가장 어려운 숙제였다. 두 가족이 원하는 각각의 요구 조건들에 대하여 우선순위를 매기고 비교해 본 결과, 네 식구인 모소장은 면적을, 세 식구인 조소장은 향을 더 원하는 것으로 좁혀졌다. 그래서 내린 우리의 결론은 각자의 집에 이르는 공용홀을 조소장의 집 면적에서 할애해 상대적으로 모소장이 바닥면적을 더 확보하고 대신 조소장은 남향을 취하는 것이었다.
■ 모소장 집








■ 조소장 집









겉과 다른 속
외관은 통일된 디자인으로 두 집의 구별을 두지 않았다. 단순한 건물에 그저 가로로 길게 찢은 창을 층별로 반복해서 설치하였다. 건물의 형태는 땅의 모양을 따르고 내부 실의 구성과 창은 공원과 나란히 두다 보니 그 어긋남이 착시를 만들지만 그것은 단순함이 지루함으로 읽히기를 경계하기 위해 의도된 바이다.









건축개요
위치: 경기도 양평군 양서면 양수리
용도: 다가구주택
규모: 지상4층
대지면적: 101.00㎡ (30.55py)
건축면적: 60.53㎡ (18.31py)
연면적: 170.61㎡ (51.61py)
건폐율: 59.93%
용적률: 168.92%
구조: 철근콘크리트 구조
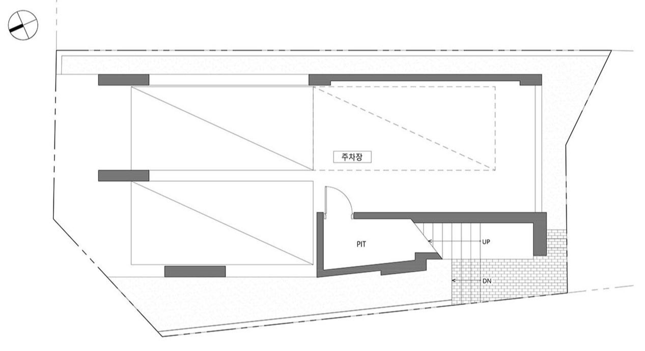
주차대수: 3대
사진: 최진보
시공: 투닷건축사사무소
설계: 투닷건축사사무소