
딜쿠샤(닿은집)
주변으로 산과 공원을 끼고 있어 조용하고 쾌적한 데다, 근거리에 대단지 아파트와 대형 상권, 병원, 교육 시설 등이 있는 주거전용지역이라는 점, 그리고 교통이 편리한 장점이 있는 땅에 건축주는 본인과 아내, 아들, 그리고 장모님, 처제네 가족까지 3세대를 위한 집을 짓기를 원했다.
수려한 공원과 나지막한 산으로 둘러싸인 의정부의 민락 2 지구 단독주택지에 위치한 대지는 지구 단위계획상 3가구의 다가구주택을 허용하고 있었다. 건폐율 40%, 용적률 80% 제한으로 비교적 다양한 형태의 주택이 들어설 가능성이 많은 상황이었음에도, 주변은 여느 도시의 다가구주택 형식과 크게 다르지 않은 모습들뿐이었다.



보통 다가구주택을 짓고자 하는 건축주는 본인의 삶을 담는 집을 짓는 목적 외에도 임대수익을 통한 건축비의 조달을 고려하지 않을 수 없다. 이때 건축주들이 흔히 가지는 자세는 스스로 다가구주택의 한계를 인정하고 수익을 위한 최소한의 건축비를 선택하는 것이다. 여기에서 말하는 다가구주택의 한계란 주변 아파트의 임대가를 넘을 수 없는, ‘아파트보다 한 단계 수준이 낮은 주택’이라는 인식이다. 하지만 그 인식에서 벗어나 단독주택과 아파트 사이의 어느 지점에 자리한, 다가구주택만의 고유한 ‘모여 사는 집’의 형식을 제안해 거주의 질과 임대 가치를 동시에 높일 수 있는 집을 만들고자 하는 생각으로 설계를 시작했다.
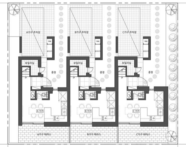
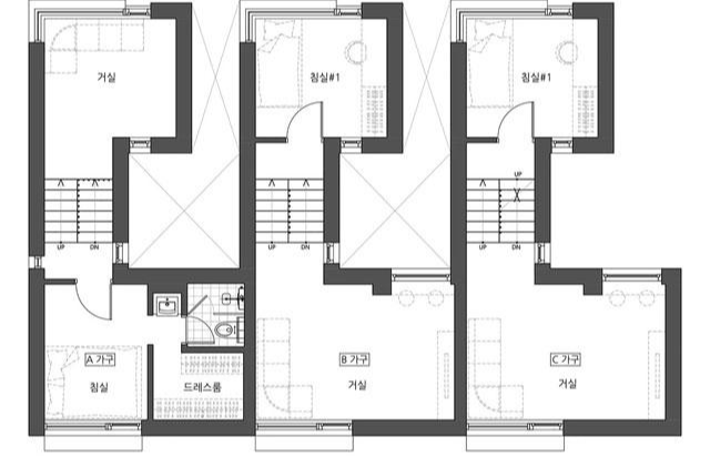
민락동 주택 설계의 시작은 공원에 면해 세 집을 나란히 놓는 것이었다. 세 집이 동등한 기회를 갖기 위해선 층으로 쌓아 수평적으로 구별되는 방식으로는 어려웠다. 수평적인 배치를 통해 세 집 모두 내 집 앞에 차를 대고 땅을 밟고 집에 들어서게 했다. 세 채의 집이 나란히 서 있으면서도 독립된 주택으로 보이기를 바라는 마음으로. 통일된 디자인 속에서도 동일한 규모가 반복되는 것이 아니라 리듬감을 가질 수 있도록 전면의 건물 높낮이를 달리했다.

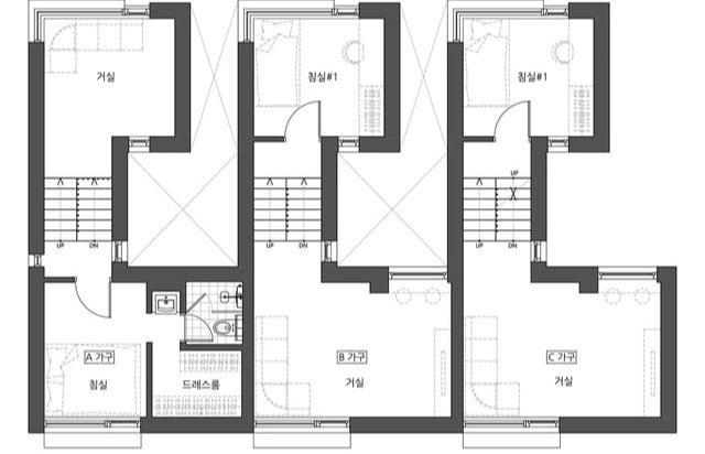
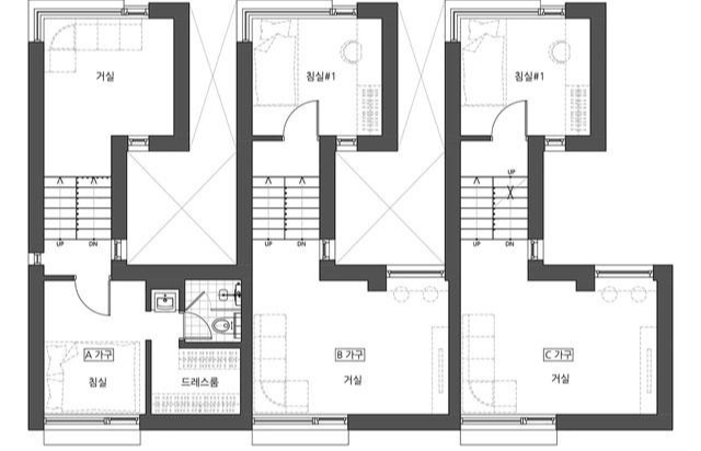
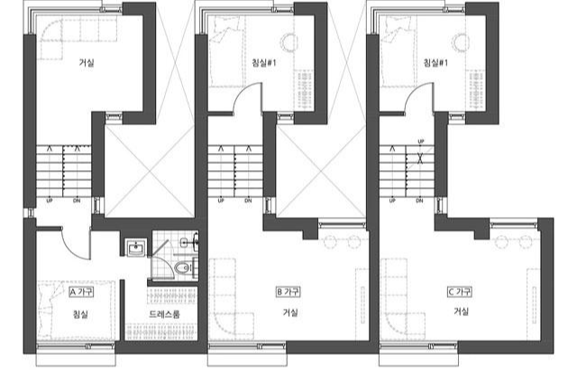
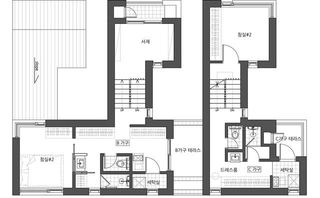
다음 할 일은 나란히 붙어 선 세 집을 벌리는 일이었다. 좁고 길게 붙은 세 집 사이에 틈을 만들었다. 그리고 그 틈의 중심에는 하늘까지 비운 중정을 두어 집의 깊숙한 곳까지 빛과 바람이 닿게 했다. 빛과 바람이 닿는 중정은 길에서 집을 이어주는 ‘연결의 공간’이 되고 일상의 활동이 밖으로 연장되는 확장의 공간이 된다. 또한 세 집 모두 스킵 플로어(skip floor) 형태의 복층 구조로 설계했다.






건축주는 한 발을 내디뎌 빛에 닿고, 두 발을 내디뎌 바람과 조우하는 장소가 집 곳곳에 있길 바랐다. 가족이 마주 앉아 이야기를 나눌 때, 배경의 집과 공원의 풍경이 이야기를 살찌우는 공간이 있었으면 좋겠다고 했다. 더하여 같이 사는 다른 가족에게도 동등한 기회가 제공되고 같이 누리며 살 수 있기를 원했다.
건축주가 편리한 아파트 생활을 마다하고 굳이 ‘집짓기’라는 험난한 여정을 택한 것은, 땅에 직접 발을 내디뎌 창 안이 아닌 밖에서 자연을 맞는 모험을 통해 일상과 삶의 주체성을 회복하기 위한 도전임을 알기에, 그의 생각을 최대한 공간으로 표현해 내고자 하였다.







A 가구 - 건축주의 장모님이 거주하는 세대
B 가구 - 건축주가 거주하는 세대
C 가구 - 건축주의 처제가 거주하는 세대


건축개요
위치: 경기도 의정부 민락동
용도: 다가구주택(3가구)
규모: 지상3층, 다락
대지면적: 258.9㎡ (78.31py)
건축면적: 103.41㎡ (31.28py)
연면적: 206.7㎡ (62.52py)
건폐율: 39.94%
용적률: 79.84%
구조: 기초 - 철근콘크리트 매트기초 / 지상 – 철근콘크리트 구조
주차대수: 3대
사진: 최진보
시공: ㈜쓰리스퀘어 종합건설
설계: 투닷건축사사무소