
'Overman' 사무실 인테리어
직장 생활을 접고 'Overman'이란 독립 광고대행사를 시작하시는 대표님과 스텝들을 위한 오피스 인테리어 프로젝트.
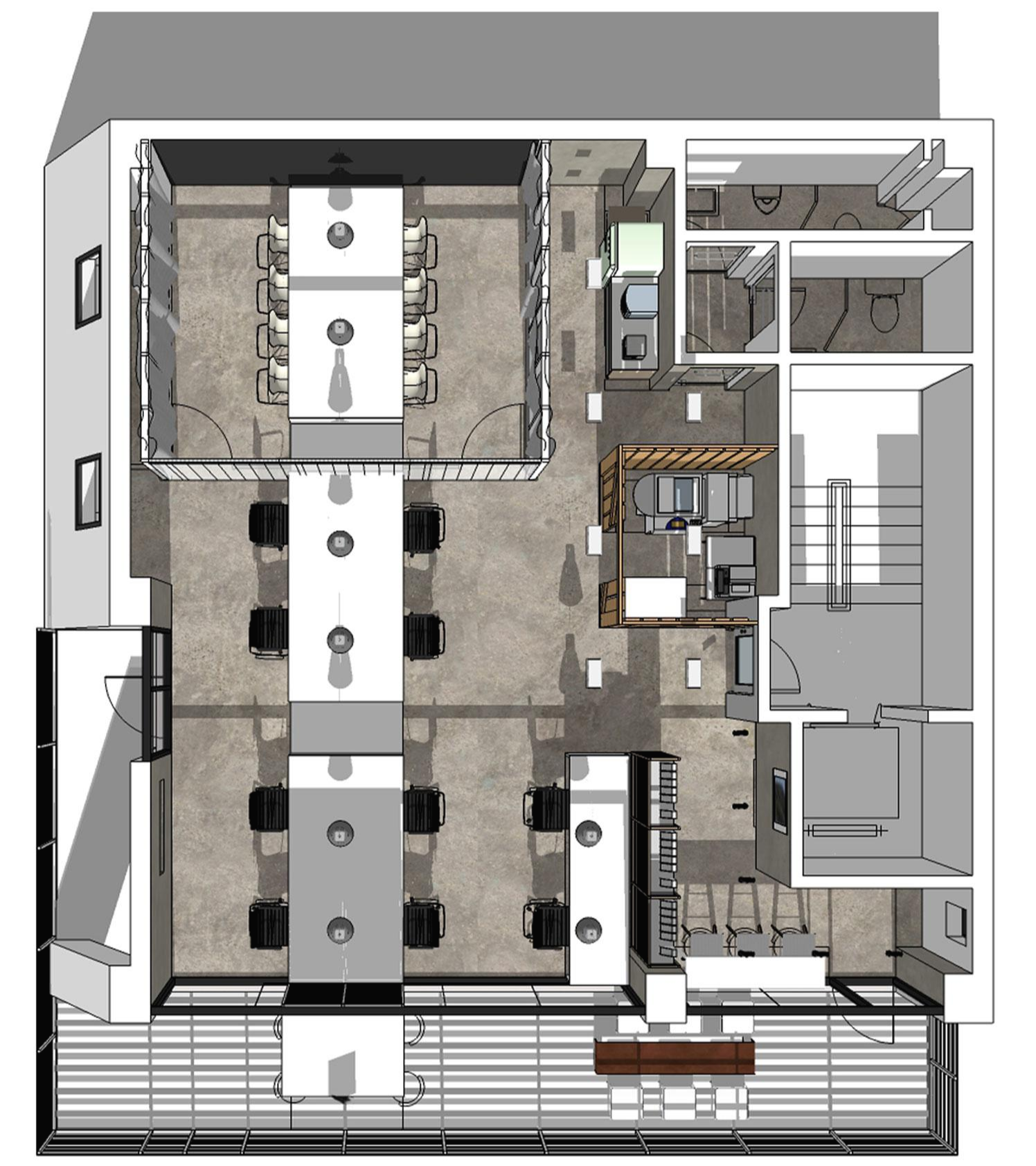
청담공원 옆 한적한 주택가의 5층, 28평 정도의 아담한 사무실을 계약하신 대표님과의 첫 미팅으로 이 프로젝트는 시작되었다. 기본 마감만으로도 어려운 빠듯한 예산으로 가구와 외부 테라스까지 감당해야 하는 터라 사무실을 구성하는 기본적 가구를 인테리어 요소로 적극 활용하는 전략을 구상하게 되었다.

사무실을 가로질러 외부까지 이어지는 책상과 거기에 걸터 앉아 자유하는 oveman이 우리의 컨셉이었다. 사무실의 일상이 채워지는 책상이 핵심적인 디자인 요소가 되니 나머지는 거들 뿐이었다.

온통 하얀 사무실에 구름처럼 떠있는 책상의 이미지가 바로 우리가 구현하려는 'overman in the cloud'의 이미지이다.






건축개요
위치: 강남구 청담동
유형: 인테리어
용도: 사무실
전용 면적: 92.8㎡
사진: 투닷건축사사무소
설계: 투닷건축사사무소