
숨집(Breath)
자주 마주치고 싶지 않은 사람과 일상적으로 대면할 때의 불편함이 익숙해질 수 없는 정서인 것처럼 난폭하고 무례하게 시시때때로 찾아오는 제주의 많은 바람도 제주 사람에겐 참 지긋지긋한 일이지 않을까.
제주의 돌로 성기게 쌓인 돌담이 그 무례하게 찾아드는 바람을 순화시켜 맞듯이 이곳에 자리할 집도 바람에 단단히 맞서기보다는 제주의 돌과 돌담처럼 성기게 있어 센 바람도 한숨의 공기처럼 편안하고 자연스럽게 다가오기를 바랐다.


상가주택의 배치에서 가장 큰 제약은 주차방식으로 보통은 주차의 효율을 위해 연립 주차를 선택하지만, 도로에 면한 대지 폭이 좁은 상태에서 상가의 전면 폭을 최대한 확보하기 위해 주차장을 대지 안쪽으로 들여와 배치했다.
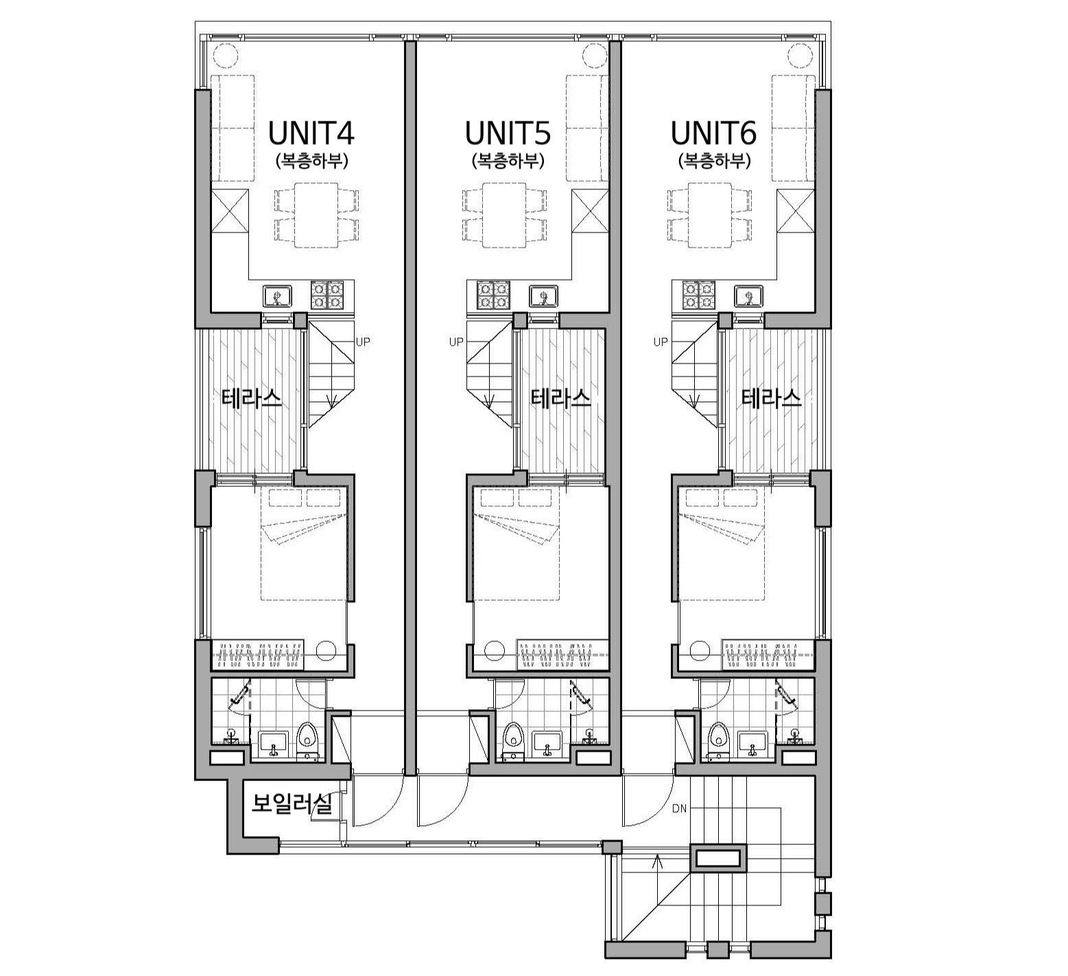
복도를 두고 배치된 세 채의 집
대지는 제주 노형동의 점포주택지 중 공원에 면해 앞이 열려있는 비교적 경관이 좋은 위치였으나, 남쪽 인접대지에는 다른 주택이 가까이에 자리하고 있어 향보다는 경관에 무게에 두고 진행이 되었다. 따라서 남측으로 계단과 공용 복도를 두고 한 층에 좁고 긴 형태의 집 세 채를 나란히 배치하여 모든 집이 공원을 조망할 수 있도록 했다.



남측은 거실이 들여다보이는 인접 건물이 있어 주택의 공용홀과 계단을 구성했다. 덕분에 주택의 진입부는 상가와 분리된 곳에 독립하여 위치하고 계단과 공용홀은 밝은 공간이 되었다.




복층으로 구성된 3가구




이 좁고 긴 주택의 가운데에 제주의 돌 같은 작은 구멍을 내었다. 이 구멍은 두 명이 마주 앉아 차 한 잔 마실 수 있을 정도의 작은 중정이 되어 채광과 환기를 돕는다.




건물은 네 방향 모두에서 옥상정원, 발코니, 중정 등 숨구멍 같은 외부와 만나는 공간들이 자리해 있다.

센 바람에 벽으로 맞서 바람으로부터 완벽히 단절되고 그 지긋지긋한 바람을 잊으려 하는 집보다는, 들숨과 날숨으로 사람이 숨을 쉬듯 편안하고 자연스럽게 순화된 바람으로 자연과 조우하는 집이 되길 바란다.





①저수조 ②주차장 ③화장실 ④근린생활시설 ⑤드레스룸 ⑥ 침실 ⑦ 거실 ⑧ 발코니 ⑨테라스 ⑩옥상정원 ⑪가족실 ⑫세탁실
건축개요
위치: 제주시 노형동
용도: 근린생활시설, 다가구주택(6가구)
규모: 지상4층
대지면적: 297.60㎡ (90.02py)
건축면적: 178.52㎡ (54.00py)
연면적: 497.85㎡ (150.60py)
건폐율: 59.99%
용적률: 167.29%
구조: 철근콘크리트 구조
주차대수: 6대
사진: 홍석규
시공: 스타시스
설계: 투닷건축사사무소