
중정삼대
대지는 영종도하늘도시의 점포주택지에 위치하고 있으며, 3층 3가구의 제한을 받는다. 주변의 주택은 대부분이 1층 상가, 2층 임대세대 2가구, 3층 주인세대로 구성되어있으며 그 외의 주거 구성은 전무한 상태이다.
위계와 차별이 뚜렷한 주변의 주거 형태는 물리적, 심리적 경계를 만들고 더불어 살아감에 방해요소가 되므로 임차인, 임대인 모두에게 바람직하지 않다. 이에 위계를 두지 않고 동등한 조건의 수평적 관계 맺기의 방법을 제안하였다.


공용 계단의 재해석
보통의 다가구주택에서 공용 계단은 필요하지만 거추장스러운 존재이다. 계단실은 주택의 공간구성에 있어 제안 조건이며, 동등한 주거 환경 구성의 제약 요소이다. 계단실을 해체하면, 주택의 공간구성에 더 많은 가능성을 제공할 수 있다.
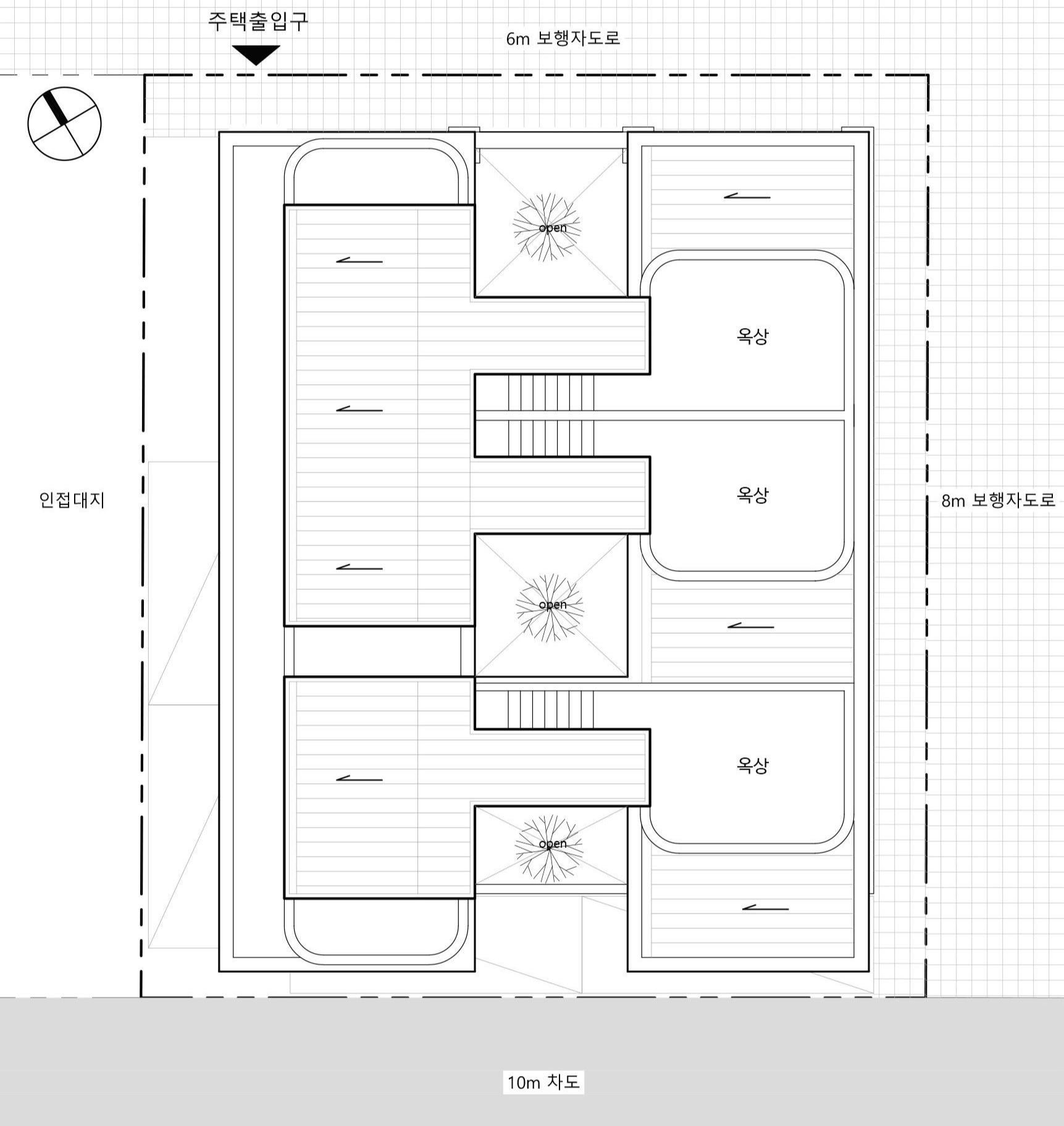
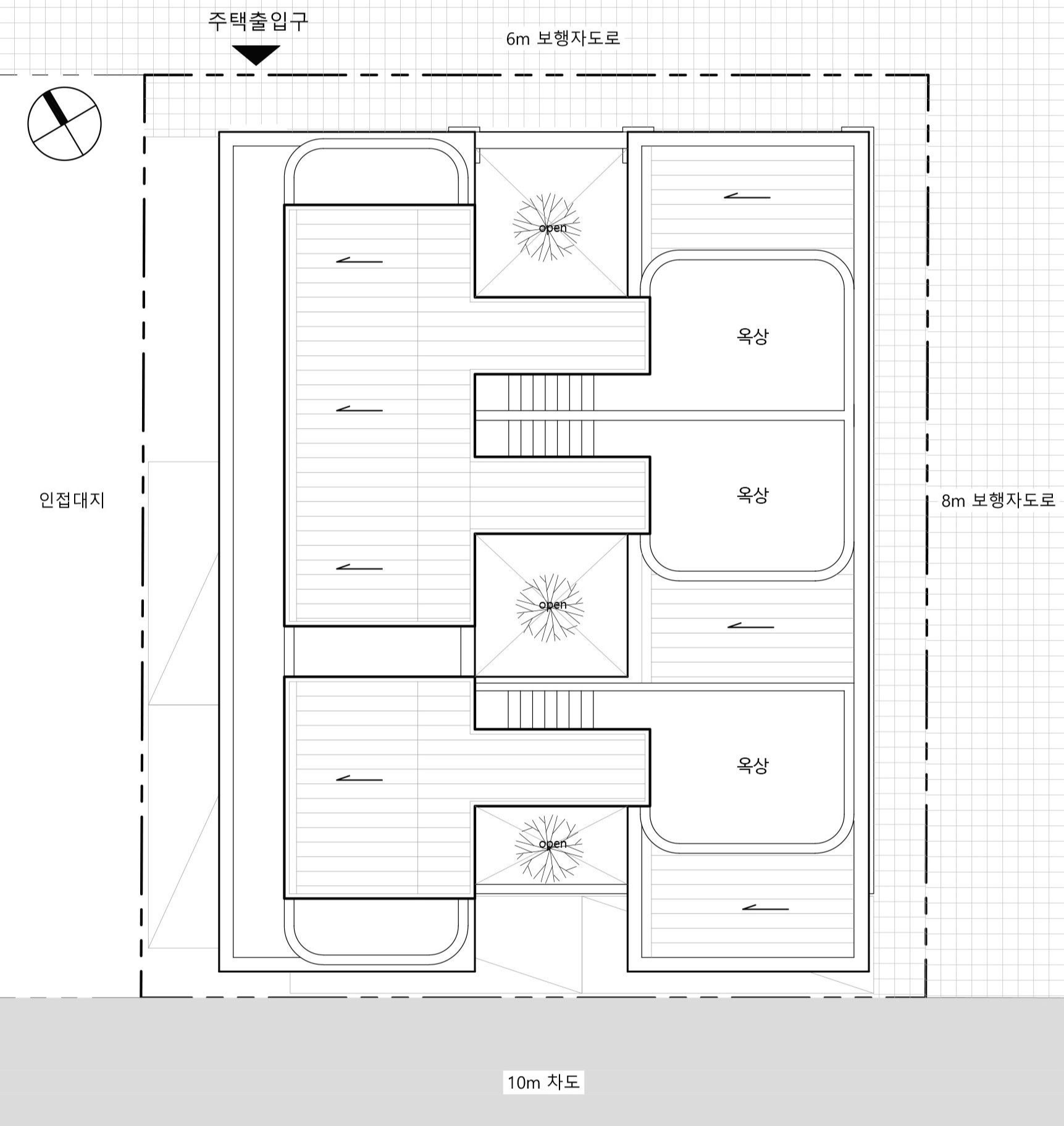
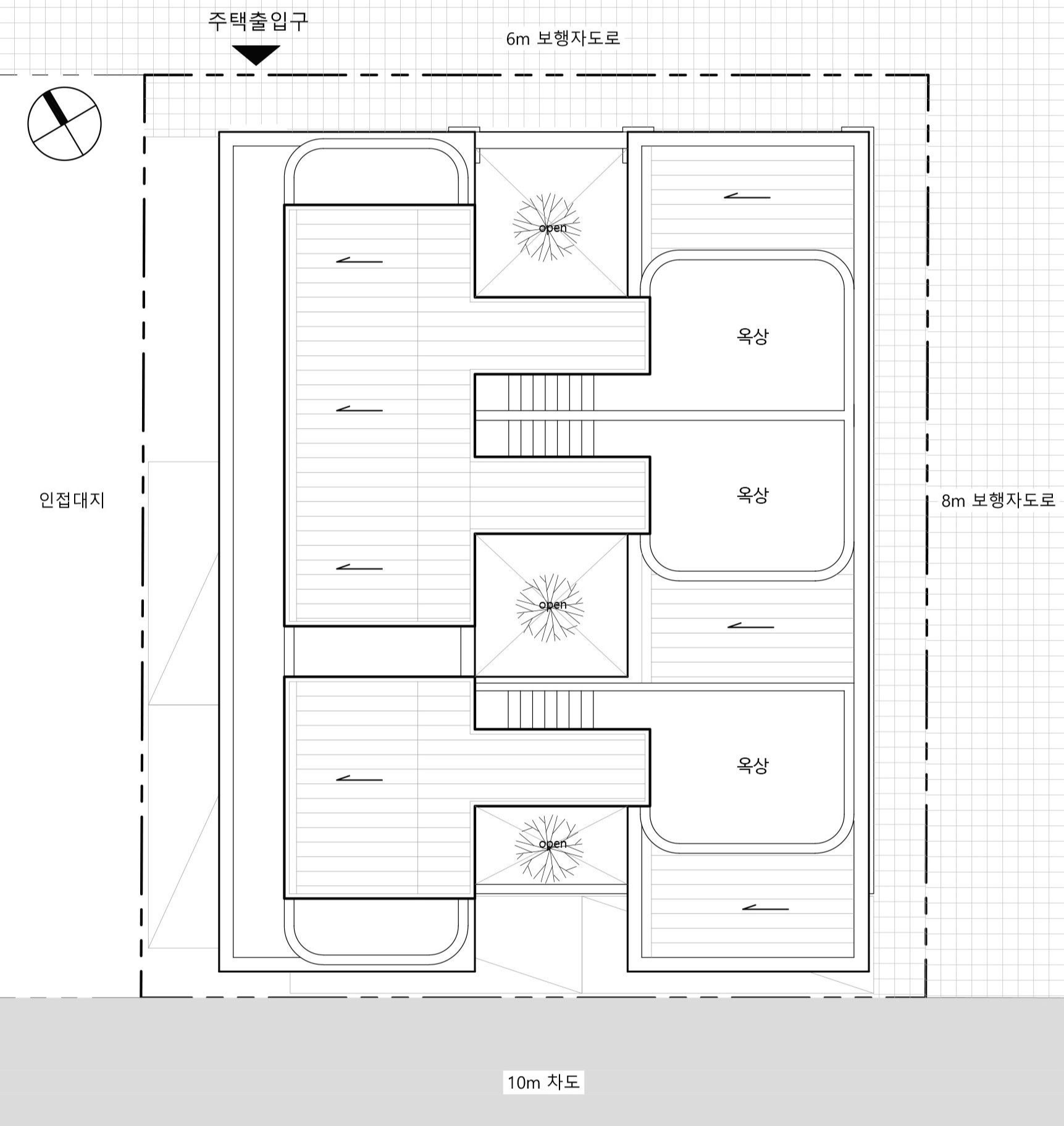
따라서 주택의 2, 3층을 복층화하고 한 층에 3가구를 구성하여 공용 계단은 2층에서 끝나도록 하였다. 2층의 수평적 복도는 3가구가 우연한 만남을 기대할 소통의 장이 된다.
동등한 거주 환경
동등한 거주 환경이란 채광. 환기, 소음 등의 외부환경 조건에 대해 동등한 기회를 가진다는 의미이다. 복층의 3가구를 나란히 배치하고 중심부에 광정(光井)을 계획하였다. 각 세대 안에 있는 광정(光井)을 통해 각각의 공간은 환기와 채광에 있어 각 가구뿐만 아니라 각 개별 방도 동등한 환경의 조건을 가질 수 있게 한다. 또한 이 3개의 광정은 건축면적을 덜어내 그만큼 주택의 볼륨을 키울 수 있는 장점을 가지게 된다.

매력적인 거리 풍경을 만들어 내기 어려운 물리적 조건과, 도시의 규모에 비해 과다한 점포 수는 뚜렷한 전략의 필요성을 역설하고 있었다. 외부환경에 기대어 존재하기보다는 스스로 매력적인 공간을 품고 목적성있는 공간이 되어야 할 것이며, 매력적인 공간의 핵심은 내부 공간으로 위요된 외부공간이어야 할 것이다.
1층까지 뚫려있는 광정은 각 가구뿐만 아니라 1층 상가에도 매력적인 외부공간을 제공한다. 상가의 중심부를 관통하는 이 외부공간은 특징 없는 주변 가로 환경과 대비되어 내부로 사람을 끌어들이는 융합의 공간이 될 것이다.
주택 채 나누기
광정을 중심으로 주택의 채를 나눈다. 채와 채 사이에 계단을 배치하고 채는 자연스레 반 층씩 엇갈리는 구조를 가지게 된다. 채를 나눔으로써 각각의 채는 독립적인 성격을 가지며, 반 층씩 엇갈리는 모호한 층별 구분으로 연속성 또한 가지고 있다.




















건축개요
위치: 인천 중구 운서동
용도: 상가주택 (다가구주택)
규모: 지상4층
대지면적: 305.90㎡ (92.53py)
건축면적: 181.68㎡ (54.96py)
연면적: 421.77㎡ (127.59py)
건폐율: 59.39%
용적률: 137.88%
구조: 철근콘크리트 구조
사진: 박건주
설계: 투닷건축사사무소