
고독한 집
어디서 어떻게 고독해질 수 있는가.
시간과 공간을 공유할 수밖에 없는 쉐어하우스. 이곳에서 우린 집이 갖는 공유의 개념을 조금 바꿔 보기로 했다. 바로 어떻게 교류할 것인가가 아닌 어떻게 고독해질 수 있는가.


생존성과 지속성
황량했던 영종하늘도시의 첫 기억. 건물로 채워지지 않은 미완성의 상태에서 느꼈던 감상이기보다는 필지의 규모에 비해 과도하게 넓은 도로와 큰 블록의 규모에 기인했다고 보는 것이 맞겠다. 영종하늘도시에 분포되어 있는 점포주택의 필지 수는 700개가 넘는다. 비슷한 지구단위계획 면적의 청라지구 점포주택 수가 300개 정도이니 두 배가 넘는 규모이다. 개별 점포 수를 고려하면 1000개가 넘을 점포가 있는 이 섬 내에서 건축주와 우리는 필지를 앞에 두고 ‘생존’에 대한 고민을 할 수밖에 없었다.
'어떻게 살아남고 지속시킬 것인가'
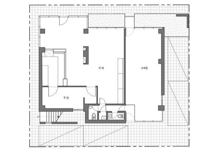
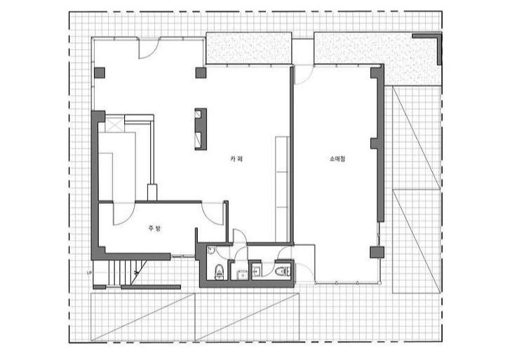
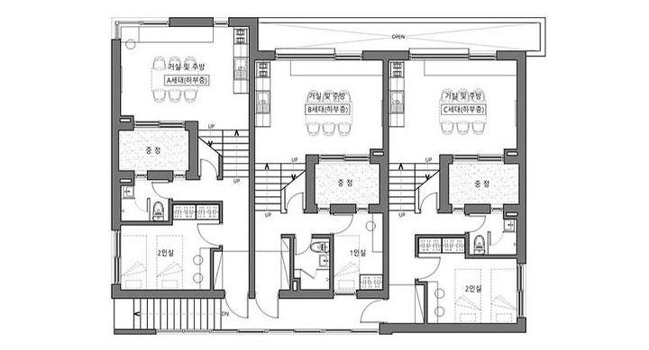
우리는 점포와 주택을 각각 풀어야 할 개별적 문제가 아닌 서로가 하나로 묶여 영향을 미치는 방정식과 같이 다루기로 했다. 영종도가 가진 지역적 특수성(인천국제공항, 카지노)을 고려해 가족 단위의 세입자보다는 독신 가구를 대상으로 하는 쉐어하우스(공유 주택)의 형식으로 주거를 계획하고 점포는 쉐어하우스를 관리, 지원하고 입주자의 사랑방 기능을 하는 카페(건축주가 직접 운영)로 구성하기로 했다.


공유 속의 고독
언제부턴가 유행처럼 번지는 공유 주택. 내방을 나눠 쓰고, 취미를 공유하는 사람이 모여 집을 나눠 쓴다. 그런데, 공간을 공유하면서 무언가 희생이 강요되고 있다는 느낌을 지울 수가 없다. ‘집’에서의 ‘공유’의 의미는 하나를 나눠가진다는 사전적 ‘공유’의 개념과는 달라야 한다고 본다. 남과 나누고 교류하고 관계하는 삶만을 살 수 없으며, 때론 자발적 고독, 은신의 욕구를 메꾸어 줄 수 있어야 하는 것이 ‘집’에서의 삶이기 때문이다.
이에 우리는 어떻게 더 적극적으로 ‘공유’하게 할 것인가? 어떻게 더 ‘공유’ 공간을 활용하고 참여하고 활기차게 할 것인가?에 맞춰진 관점을 조금 바꿔 보기로 했다.
'어디서, 어떻게 난 고독해질 수 있는가?'
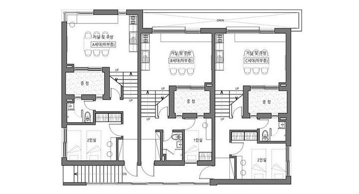
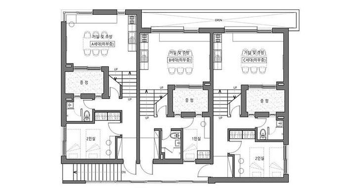
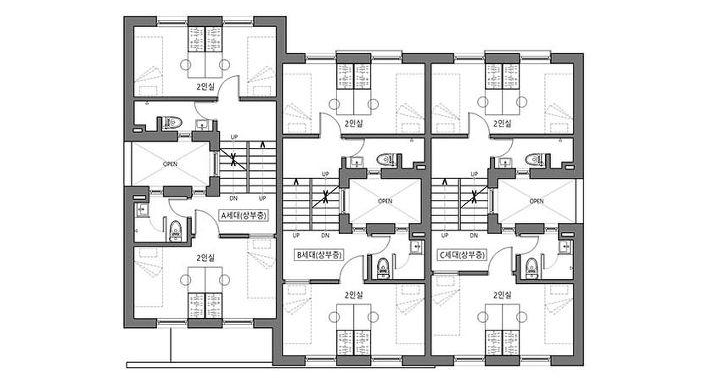
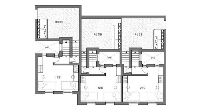
A세대 풍경


일상 속에서 우린 공간을 공유하는 것뿐 아니라 시간도 함께 공유하고 있다.
그래서 우린, 일상의 시간과 공간 사이의 틈을 찾으면, 오롯이 고독해질 수 있다고 생각했다. 반복되는 일상에서 조금 떨어져 있을 수 있는 장소가 있고, 그 장소의 활용이 동시적인 상황이 아니라면 충분히 고독해질 수 있다고 생각했다.




B,C세대 풍경








옥상에는 외부로부터 시선이 차단되고 오직 하늘로만 열린 작은 정원이 있다. 그저 멍하게 비워져 일상으로부터 버려진 듯한 공간. 이곳이 혼자 있고 싶은 누군가에게 발견되었으면 하는 마음으로 계획하였다.

함께 하는 시간만큼 혼자인 시간이 좋았던 기억으로 남는 집이 되길 바란다. 이것이 우리가 고독할 수 있는 집에 대해 기대하는 전부다.




건축개요
위치: 인천광역시 영종도 운서동
용도: 근린생활시설+쉐어하우스
대지면적: 285.60m² (86.39py)
건축면적: 170.33m² (51.52py)
연면적: 410.49m² (124.17py)
건폐율: 59.64%
용적률: 143.73%
규모: 지상3층
구조: 철골콘크리트 구조
사진: 디스틴토
설계: 투닷건축사사무소